Abstract

It is presented the mathematical and numerical devolpement and modelling of a new computational method named “The idealized steel profile” for the design of reinforcing steel in concrete structures. Hereby it will be shown its application for solid prismatic concrete columns of both rectangular and circular cross sections subjected to flexo-compression stresses in two directions, according to the design components and analysis criteria stablished for this type of structures following the [3].

At the end such method will be tested for various experimental structural models under certain load combinations from a structural analysis made previously, making comparisons between the results according to certain design criteria and requirements such as structural efficiency, costs and geometry following various specific design goals.

keywords: design criteria, reinforcing steel, reinforced concrete, mathematical formulation, computational methods

(1) Universidad de Guanajuato,Aula CIMNE-UG, Guanajuato, Guanajuato, México 2019.

1 Introducción

En los proyectos de diseño y análisis estructural de elementos de concreto reforzado se requiere de análisis numéricos que evocan muchas iteraciones para llegar a un resultado que sea tanto estructural como económicamente eficiente; con el uso de métodos numéricos podemos llegar a estas soluciones muy rápidamente.

El uso de métodos numéricos y programación se ha convertido en una herrmienta necesaria para la automatización de procesos y optimización en tiempos y recursos en el diseño de infraestructura civil. Resulta útil como ingeniero en cualquier área en que se este trabajando, tener conocimientos y habilidades de computación y programación, ya sea en una o en varias plataformas e interfaces de lenguajes de programación.

El presente trabajo está orientado precisamente a usar programación y métodos numéricos en la practica diaria en el diseño de análisis de infraestructura civil, en éste caso se determinará el acero de refuerzo necesario en columnas de concreto para que resistan ciertas condiciones de carga.

En la práctica común, la determinación del acero de refuerzo necesario en elementos de concreto se realiza mediante aproximaciones empíricas basadas en la experiencia; el proceso se vuelve bastante tardado y cansado.

Expondremos pues, el diseño de un software, cuya principal función es la de determinar una configuración de varillas de acero de refuerzo para elementos de concreto sometidos a flexo-compresión, que resulte la más eficiente estructuralmente o la más económica. Para ello el diseñador únicamente tendrá que definir las dimensiones en función de los requerimientos estructurales y/o de espacio. Pueden ser estos elementos columnas cortas y/o largas, pilas, pilotes o incluso dados de cimentación.

El programa tiene la capacidad de analizar elementos estructurales de concreto con secciones circulares y rectangulares. Usualmente, por cuestiones constructivas se requieren geometrías de secciones que no sean complejas y que sean uniformes.

Como resultdos de éste programa se obtienen tanto propuestas como recomendaciones de disposiciónes y arreglos del refuerzo, es decir, no solo se obtienen las opciones de número de varillas con su respectivo diámetro, sino también el acomodo que pudieran tener éstas e indicando además la eficiencia crítica estructural para cada arreglo. El programa selecciona ya sea el arreglo más eficiente etructuralmente o el más barato (de acuerdo a las preferencias del constructor) para cada columna, para luego calcular los volúmenes de materiales requridos (acero, concreto y cimbra) e integrar el presupuesto del proyecto; pasando de la etapa de diseño del proyecto a la elaboración de la cotización en cuestión de segundos. Diversos softwares comerciales de análisis y diseño estructural no hacen esto, de ellos se obitenen únicamente resultados de un análisis con las geometrías y el refuerzo que el diseñador propone inicialmente.

Las aplicaciones y alcances que puede tener éste enfoque de análisis son de gran potencial en el diseño de estructuras de concreto, ya que podría adaptarse a cualquier geometría, cambiando la forma en que se diseñan y analizan elementos de concreto reforzado de hoy en adelante.

2 Objetivo

Diseñar un programa que sea capaz de determinar los posibles arreglos de acero de refuerzo para cualquier número de columnas que se trate, así como seleccionar la opción más eficiente o barata para cada columna, calculando los volumenes de materiales requeridos para finalmente integrar la cotización del proyecto.

3 Metodología general

Se presenta la siguiente metodología de manera general para el desarrollo de las funciones del programa de optimización (consideraciones para análisis estructural, optimización, exportación de reportes y resultados).

  • Desarrollar la formulación matemática y numérica para la programación en un lenguaje de programación, tanto para secicones de geometría ciruclar y rectangular, de acuerdo a los criterios de diseño y análisis que establecen las [3]
  • Hacer un estudio de precios unitarios y costos de proveedores de acerero, así como de equipo y mano de obra en general para armar el acero de refuerzo
  • Insertar estos costos en el programa al momento del diseño
  • Realizar las simulaciones y ejecución de experimentos requeridos para analizar el comportamiento de diferentes modelos estructurales de columnas ante diferentes condiciones de carga, haciendo comparaciones entre los diversos resultados referente a costos finales, eficiencias estructurales y geometrías

4 Materiales y métodos

4.1 Métodos numéricos computacionales con aplicación a diseño de estructuras

Los métodos numéricos constituyen técnicas mediante las cuales es posible formular problemas matemáticos con resolución mediante operaciones aritméticas. Con el desarrollo de las computadoras digitales eficientes y rápidas, el papel de los métodos numéricos en ingeniería aumento considerablemente.

Antes de las computadoras se gastaba bastante energía en la técnica misma de solución, en lugar de usarla en la definición del problema. Esto debido al trabajo monótono que se requería para obtener resultados numéricos aceptables. Ahora, al usar la potencia de una comutadora se obtienen soluciones directamente, sin tener que recurrir a simplifaciones o soluciones análiticas que pueden resultar complejas. Gracias a esto, es posible dar más importancia ahora a la interpretación de la solución y su incorporación al sistema total del problema.

El desarrollo de los métodos numéricos más famosos por aquellos grandes científicos, matemáticos e ingenieros han servido de inspiración para muchos investigadores en la ingeniería y ciencia más que para desarrollar la aplicación de los existentes a problemas, desarrollar los suyos propios con la potencia de las computadoras.

Se han desarrolaldo desde el uso de las computadoras innumerables métodos computacionales en el análisis y diseño de las estructuras. Tal vez el más famoso y usado de todos es el Método del Elementos Finito [6] cuyas aplicaciones van desde el análisis elástico de elementos estructurales, hasta la simulación numérica de fluidos. Desde su primera aparición en 1956 el mismo método ha evulocionado y desarrollado para crear diferentes versiones del mismo dependiendo de su aplicación.

Sin embargo, de manera general, cada vez que se quiere hacer una mejora en un análisis y/o diseño estructural en cuánto a rápidez y aproximaciones de soluciones deseadas se crea un nuevo método numérico computacional. Ya que con solo hecho de implementar la potencia de una computadora para encontrar una solución de un problema se requiere de un ajuste de datos, desarrollo de modelos matemáticos, encontrar coeficientes o iterar operaciones aritméticas, y eso, en sí, lo vuelve un método numérico computacional.

5 Antecedentes de construcción con concreto reforzado

Tan solo desde el punto de vista ambiental, en la construcción, la tecnología del concreto armado se antepone a filosofías de sustentabilidad; la manipulación de aceros de construcción ASTM A615 (barras lisas y corrugadas) en forma desmedida desde la concepción de los diseños de refuerzos previos hasta su empleo en la construcción origina altos grados de desperdicios de acero, por efectos de cortes, doblados ineficinetes, o simplemente por una falta de diseño óptimo de este en las estructuras, tal que cumpla con todas las restricciones de eficiencia estructural al mismo tiempo que se use el mínimo posible.

5.1 El acero de refuerzo en la industria de la construcción

En obras de concreto armado, se generan entre el 7% al 27% de desperdicios de aceros ASTM A615 en forma de barras corrugadas. Estas barras se fabrican tanto de acero laminado en caliente como acero trabajado en frío. Los diámetros usuales de barras producidas en México varían de Failed to parse (MathML with SVG or PNG fallback (recommended for modern browsers and accessibility tools): Invalid response ("Math extension cannot connect to Restbase.") from server "https://mathoid.scipedia.com/localhost/v1/":): \frac{1}{4}pulg. , a Failed to parse (MathML with SVG or PNG fallback (recommended for modern browsers and accessibility tools): Invalid response ("Math extension cannot connect to Restbase.") from server "https://mathoid.scipedia.com/localhost/v1/":): 1\frac{1}{2} pulg. , aunque algunos productores han fabricado barras corrugadas de Failed to parse (MathML with SVG or PNG fallback (recommended for modern browsers and accessibility tools): Invalid response ("Math extension cannot connect to Restbase.") from server "https://mathoid.scipedia.com/localhost/v1/":): \frac{5}{16}pulg , Failed to parse (MathML with SVG or PNG fallback (recommended for modern browsers and accessibility tools): Invalid response ("Math extension cannot connect to Restbase.") from server "https://mathoid.scipedia.com/localhost/v1/":): \frac{5}{33}pulg

y Failed to parse (MathML with SVG or PNG fallback (recommended for modern browsers and accessibility tools): Invalid response ("Math extension cannot connect to Restbase.") from server "https://mathoid.scipedia.com/localhost/v1/":): \frac{3}{16}pulg

.

El acero de refuerzo se produce además en otras más diversas formas para todo tipo de elementos de concreto, también las hay barras lisas, barras de acero helicoidales para la forticiación y reforzamiento de rocas, taludes y suelos a manera de perno de fijación. Incluso se fabrican como mallas cuadriculares (transpuestas en doble sentido) principalemtne para estructuras de losas y cimentaciones.

El tener un mejor control en la cantidad de acero que se usa para este tipo de estructuras en la construcción es primordial hoy en día para mitigar los impactos ambientales y económicos a que se enfrenta un país, pues la industria de la construcción siempre será de gran peso e influencia en cualquier región del mundo. Es imprescindible el desarrollo de tecnología que pueda favorecer el control en diseño y construcción de estas estructuras.

6 Columnas de concreto reforzado

Es el elemento estructural vertical empleado para sostener la carga de la edificación o estructura principal que se trate. Se utiliza principalemente por la libertad que proporciona para distribuir espacios al tiempo que cumple con la función de soportar el peso de la construcción.

Las formas, armados y las específicaciones de las columnas estarán en razón directa del tipo de esfeurzos y condiciones en general a que estas sean expuestas.

6.1 Clasificación de columnas de concreto

Las columnas de concreto reforzado pueden clasificarse como columnas cortas, intermedias y columnas largas.1 Es necesario tener esto en cuenta para entender cómo funciona el programa, ya que el análisis de las columnas preceden del mismo mecanismo de falla de estos tipos de columnas.

Columnas cortas: La carga que pueden soportar está regida por las dimensiones de su sección transversal y por la resistencia de los materiales de que está construida.

Columnas intermedias: La falla es por una combinación de aplastamiento y pandeo.

Columnas largas: La capacidad de carga axial en estás columnas se ve reducida a causa de los momentos secundarios resultates debidos a la deformacion por flexión de la columna.

El presente trabajo trata únicamente con columnas cortas.

(1) Jack C. McCormac, Rusell H. Brown, “Diseño de concreto reforzado”, 14va edición, Alfaomega(2015), p.257.

6.2 Tipos de columnas de concreto

El tipo de columnas de concreto depende de la forma de la sección transversal, así como de su tipo de refuerzo 1. Hay columnas de concreto con refuerzo en forma de varillas longitudinales de acero, con restricción lateral (helicoidal o con estribos cerrados).

Generalmente las columnas con estribos tienen una sección transversal rectangular, mientras que las columnas zunchadas suelen tener sección trasnversal circular, pero también pueden fabricarse con secciones rectangulares, octogonales, entre otras formas. Las espirales en comparación de los estribos incrementan en mayor medida la resistencia debido al aumento de la eficiencia del efecto de confinamiento del refuerzo transversal; aunque, en algunos casos, aumentando también los costos de construcción.

(1) Jack C. McCormac, Rusell H. Brown, “Diseño de concreto reforzado”, 14th edition, Alfaomega (2015), p. 258.

6.3 Conceptos generales de diseño

Es necesario entender las hipótesis empleadas en el diseño de concreto reforzado, para comprender de donde provienen algunos factores, y números incluídos en el análisis.

6.3.1 Carga axial

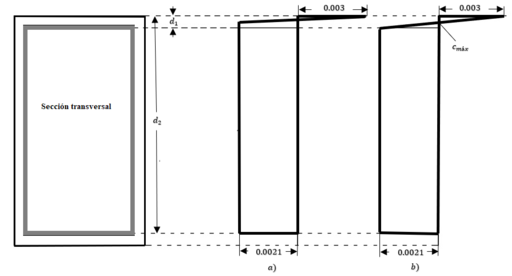
Si se somete un espécimen de concreto simple con relación alto ancho de dos a una carga axial de compresión, la carga máxima se llegará a una deformación unitaria del orden de 0.002. Arbitrariamente se toma como 100 por ciento la resistencia de un espécimen con relación de esbeltez igual a dos. [4]

Para relaciones de esbeltez mayores que dos, la resistencia baja, hasta llegar al 85 por ciento, aproximadamente. Por consiguiente, la resistencia de un elemento de concreto simple sujeto a compresión axial puede estimarse como el producto del 85 por ciento del esfuerzo medido en cilindro de control Failed to parse (MathML with SVG or PNG fallback (recommended for modern browsers and accessibility tools): Invalid response ("Math extension cannot connect to Restbase.") from server "https://mathoid.scipedia.com/localhost/v1/":): {f'}_{c} , ensayado en las mismas condiciones, multiplicado por el área de la sección transversal del elemento. Este factor de reducción, 0.85, es solo un promedio de resultados de ensayes en miembros colados verticalmente.

Cuando se le adiciona el refuerzo longitudinal a un espécimen de concreto simple y se le añade también el refuerzo transversal necesario para mantener las barras longitudinales en su posición durante el colado, la carga máxima se obtendrá ahora a una deformación unitaria del orden de 0.0021. La falla, en cambio, se produce a una deformación unitaria de 0.003 o 0.004, si el ensaye es de corta duración.

La resistencia adicional sobre la de un prisma de concreto simple debido a la adición del refuerzo longitudinal en compresión se puede estimar como el producto del área del acero por el esfuerzo de fluencia Failed to parse (MathML with SVG or PNG fallback (recommended for modern browsers and accessibility tools): Invalid response ("Math extension cannot connect to Restbase.") from server "https://mathoid.scipedia.com/localhost/v1/":): f_{y}


Por lo tanto, la resistencia o carga máxima a compresión que un prisma de concreto con refuerzo longitudinal puede alcanzar esta dada por la siguiente expresión:.

Failed to parse (MathML with SVG or PNG fallback (recommended for modern browsers and accessibility tools): Invalid response ("Math extension cannot connect to Restbase.") from server "https://mathoid.scipedia.com/localhost/v1/":): P_{oc} = (0.85)f{'}_{c}(A_{c}-A_{s})+f_{y}(A_{s})
(1)

Cabe resaltar que se está considerando el área de acero en la contribución de la resistencia del concreto a compresión (primer término de la Ecuación 1, que puede influir considerablemente en los cálculos.

Por otra parte, la carga máxima a tensión que el elemento puede soportar está dada por:

Failed to parse (MathML with SVG or PNG fallback (recommended for modern browsers and accessibility tools): Invalid response ("Math extension cannot connect to Restbase.") from server "https://mathoid.scipedia.com/localhost/v1/":): P_{ot} = (f_{y}(A_{s}))
(2)

En la que solo interviene el acero, ya que el concreto se agrieta y no contribuye a la resistencia.

6.3.2 Flexo-compresión

Consideraciones generales de análisis

1


a. Se aborda el análisis mediante propuestas de geometría de la sección de la columna que permanecerán fijas, haciendo variar únicamente el área de acero de refuerzo.


b. Un elemento puede alcanzar su resistencia bajo innumerables combinaciones de carga axial y momento flexionante. Estas combinaciones varían desde una capa axial máxima (Failed to parse (MathML with SVG or PNG fallback (recommended for modern browsers and accessibility tools): Invalid response ("Math extension cannot connect to Restbase.") from server "https://mathoid.scipedia.com/localhost/v1/":): P_{oc} ) sin momento de flexión, hasta un momento (Failed to parse (MathML with SVG or PNG fallback (recommended for modern browsers and accessibility tools): Invalid response ("Math extension cannot connect to Restbase.") from server "https://mathoid.scipedia.com/localhost/v1/":): M_{o} ) sin fuerza axial.


c. El lugar geométrico de las combinaciones de carga axial y momento flexionante con las que un elemento puede alcanzar su resistencia se representa gráficamente por medio de un ''diagrama de interacción" Figura 1.


d. Cuando al aumentar la carga externa, el momento y la carga axial crecen en la misma proporción, la historia de carga queda representada por una recta desde el origen, con una pendiente igual al cociente Failed to parse (MathML with SVG or PNG fallback (recommended for modern browsers and accessibility tools): Invalid response ("Math extension cannot connect to Restbase.") from server "https://mathoid.scipedia.com/localhost/v1/":): {\textstyle P/M=1/e} . Figura 1.


e. Existen solo dos modos principales de falla de elementos sujetos a flexo-compresión: falla en compresión y falla en tensión:


1. Falla a compresión: Se produce por aplastamiento del concreto. El acero del lado más comprimido fluye, en tanto que el lado opuesto no fluye en tensión


2. Falla en tensión: Se produce cuando el acero de un lado fluye en tensión antes de que se produzca el aplastamiento del concreto en el lado opuesto más comprimido.


f. El diagrama de interacción de un elemento puede obtenerse a partir de las hipótesis descritas para el cálculo de la resistencia de elementos sujetos a flexión pura, considerando que ahora la sumatoria de fuerzas debe ser igual a la carga P aplicada.

NOTA: Lo anterior aplica para cualquier geometría.

Diagrama de interacción típico. (Dibujo propio.)
Figura 1: Diagrama de interacción típico. (Dibujo propio.)

Fórmula de Bresler

Bresler desarrolló una expresión muy simple para columnas rectangulares para calcular los valores máximos de la carga de compresión que actúa a excentricidades Failed to parse (MathML with SVG or PNG fallback (recommended for modern browsers and accessibility tools): Invalid response ("Math extension cannot connect to Restbase.") from server "https://mathoid.scipedia.com/localhost/v1/":): e_{x}

y Failed to parse (MathML with SVG or PNG fallback (recommended for modern browsers and accessibility tools): Invalid response ("Math extension cannot connect to Restbase.") from server "https://mathoid.scipedia.com/localhost/v1/":): e_{y}
en secciones rectangulares con refuerzo simétrico. Ecuación 3. Dicha solución surgió ante la necesidad de evitar realizar los cálculos para determinar una superficie de interacción2, reduciendo el problemas a una combinación de soluciones más simples; dos de flexo-compresión en un plano de simetría y una de compresión axial.

Failed to parse (MathML with SVG or PNG fallback (recommended for modern browsers and accessibility tools): Invalid response ("Math extension cannot connect to Restbase.") from server "https://mathoid.scipedia.com/localhost/v1/":): \frac{1}{P_{R}}=\frac{1}{P_{rx}}+\frac{1}{P_{ry}}-\frac{1}{P_{oc}}
(3)

Donde: Failed to parse (MathML with SVG or PNG fallback (recommended for modern browsers and accessibility tools): Invalid response ("Math extension cannot connect to Restbase.") from server "https://mathoid.scipedia.com/localhost/v1/":): {\textstyle P_{R}} =Carga normal resistente sobre la sección transversal del elemento actuando a excentricidades Failed to parse (MathML with SVG or PNG fallback (recommended for modern browsers and accessibility tools): Invalid response ("Math extension cannot connect to Restbase.") from server "https://mathoid.scipedia.com/localhost/v1/":): {\textstyle e_{x}}

y Failed to parse (MathML with SVG or PNG fallback (recommended for modern browsers and accessibility tools): Invalid response ("Math extension cannot connect to Restbase.") from server "https://mathoid.scipedia.com/localhost/v1/":): {\textstyle e_{y}}

.

Failed to parse (MathML with SVG or PNG fallback (recommended for modern browsers and accessibility tools): Invalid response ("Math extension cannot connect to Restbase.") from server "https://mathoid.scipedia.com/localhost/v1/":): {\textstyle P_{rx}} =Carga normal resistente a una excentricidad de Failed to parse (MathML with SVG or PNG fallback (recommended for modern browsers and accessibility tools): Invalid response ("Math extension cannot connect to Restbase.") from server "https://mathoid.scipedia.com/localhost/v1/":): {\textstyle e_{y}} .

Failed to parse (MathML with SVG or PNG fallback (recommended for modern browsers and accessibility tools): Invalid response ("Math extension cannot connect to Restbase.") from server "https://mathoid.scipedia.com/localhost/v1/":): {\textstyle P_{ry}} =Carga normal resistente a una excentricidad de Failed to parse (MathML with SVG or PNG fallback (recommended for modern browsers and accessibility tools): Invalid response ("Math extension cannot connect to Restbase.") from server "https://mathoid.scipedia.com/localhost/v1/":): {\textstyle e_{x}} .

La Ecuación 3 verifica los ensayes disponibles dentro del 20 por ciento de aproximación, y representa una familia de planos que aproximan los puntos de la superficie de interacción. Figura 2.

Superficie de interacción típica. Tomada de:
Figura 2: Superficie de interacción típica. Tomada de:

Otro enfoque para analizar columnas sujetas a carga axial y flexión en dos planos Ecuación 4 a es partir de la cual se desprende otra expresión simplificada para calcular la eficiencia de un elemento cuando la relación Failed to parse (MathML with SVG or PNG fallback (recommended for modern browsers and accessibility tools): Invalid response ("Math extension cannot connect to Restbase.") from server "https://mathoid.scipedia.com/localhost/v1/":): P_{R}/P_{oc}<0.1 . Ecuación 9 (que es la se presenta en las NTC-2017 [ntc17]) a las cuáles se hará referencia a continuación.

Failed to parse (MathML with SVG or PNG fallback (recommended for modern browsers and accessibility tools): Invalid response ("Math extension cannot connect to Restbase.") from server "https://mathoid.scipedia.com/localhost/v1/":): (\frac{P_{u}-P_{nb}}{P_{ot}-P_{nb}})+(\frac{M_{ux}}{M_{nbx}}^{1.5})+(\frac{M_{uy}}{M_{nby}}^{1.5})=1.0
(4)

Donde: Failed to parse (MathML with SVG or PNG fallback (recommended for modern browsers and accessibility tools): Invalid response ("Math extension cannot connect to Restbase.") from server "https://mathoid.scipedia.com/localhost/v1/":): P_{u} =Carga axial nominal aplicada

Failed to parse (MathML with SVG or PNG fallback (recommended for modern browsers and accessibility tools): Invalid response ("Math extension cannot connect to Restbase.") from server "https://mathoid.scipedia.com/localhost/v1/":): P_{nb} =Resistencia nominal a carga axial en la condición balanceada.

Failed to parse (MathML with SVG or PNG fallback (recommended for modern browsers and accessibility tools): Invalid response ("Math extension cannot connect to Restbase.") from server "https://mathoid.scipedia.com/localhost/v1/":): M_{nbx}

y Failed to parse (MathML with SVG or PNG fallback (recommended for modern browsers and accessibility tools): Invalid response ("Math extension cannot connect to Restbase.") from server "https://mathoid.scipedia.com/localhost/v1/":): M_{nby}

=Momentos nominales resistentes en la condición balanceada alrededor de los ejes X y Y recpectivamente.

Failed to parse (MathML with SVG or PNG fallback (recommended for modern browsers and accessibility tools): Invalid response ("Math extension cannot connect to Restbase.") from server "https://mathoid.scipedia.com/localhost/v1/":): M_{ux}

y Failed to parse (MathML with SVG or PNG fallback (recommended for modern browsers and accessibility tools): Invalid response ("Math extension cannot connect to Restbase.") from server "https://mathoid.scipedia.com/localhost/v1/":): M_{uy}

=Momentos nominales aplicados alrededor de los ejes X y Y respectivamente.

(1) González Cuevas, Fco. Robles Fernández,“Aspectos básicos del Concreto Reforzado”, 4ª edición, Limusa (2005). Capítulo 6, p. 127-155.

(2) Es el espacio geométrico de los valores de carga axial que la sección de un elemento es capaz de resistir, en todos sus planos.

6.4 Normativa

Anteriormente se presentaron hipótesis generales de diseño con concreto, porque son de tales hipótesis en que los reglamentos de construcción se basan. Para desarrollar éste proyecto se hizo referencia a las Normas Técnicas complementarias para el diseño y construcción de estructuras de concreto del Reglamento de Construcciones de la Ciudad de México (NTC-2017), que aunque se basan en las hipótesis anteriores no presentan tal cual los mismos criterios de diseño, y que son cuestionados mucho por la sociedad ingenieril. Veamos que proponen estas normas.

6.4.1 Carga axial

En las NTC-2017 se considera necesario hacer una modificación en el valor de Failed to parse (MathML with SVG or PNG fallback (recommended for modern browsers and accessibility tools): Invalid response ("Math extension cannot connect to Restbase.") from server "https://mathoid.scipedia.com/localhost/v1/":): f{'}_{c}

mediante Factores de carga Failed to parse (MathML with SVG or PNG fallback (recommended for modern browsers and accessibility tools): Invalid response ("Math extension cannot connect to Restbase.") from server "https://mathoid.scipedia.com/localhost/v1/":): F_{c}
y Factores de Resistencia Failed to parse (MathML with SVG or PNG fallback (recommended for modern browsers and accessibility tools): Invalid response ("Math extension cannot connect to Restbase.") from server "https://mathoid.scipedia.com/localhost/v1/":): F_{R}

1. En el apartado de concreto se específica que para el cálculo de resistencias se utilice una resistencia reducida a la compresión del concreto denominada Failed to parse (MathML with SVG or PNG fallback (recommended for modern browsers and accessibility tools): Invalid response ("Math extension cannot connect to Restbase.") from server "https://mathoid.scipedia.com/localhost/v1/":): f^{''}c . Cuyo valor es:

Failed to parse (MathML with SVG or PNG fallback (recommended for modern browsers and accessibility tools): Invalid response ("Math extension cannot connect to Restbase.") from server "https://mathoid.scipedia.com/localhost/v1/":): f{''}c=0.85(f{'}c)
(5)

De modo que la ecuación Ecuación [ 1] se transforma a:

Failed to parse (MathML with SVG or PNG fallback (recommended for modern browsers and accessibility tools): Invalid response ("Math extension cannot connect to Restbase.") from server "https://mathoid.scipedia.com/localhost/v1/":): P_{oc}=F_{R}((f{''}c)(A_{c}-A_{s})+f_{y}(A_{s}))
(6)

De modo que la ecuación Ecuación [ 2] se transforma a:

Failed to parse (MathML with SVG or PNG fallback (recommended for modern browsers and accessibility tools): Invalid response ("Math extension cannot connect to Restbase.") from server "https://mathoid.scipedia.com/localhost/v1/":): P_{ot}=F_{R}(f_{y})(A_{s})
(7)

Para una mejor interpretación de los factores mecionados se puede hacer referencia a la Figura 3, que es el bloque de transformación equivalente de esfuerzos de las hipótesis de las NTC-2017.

Hipótesis de las NTC-2017 sobre la distribución de deformaciones y esfuerzos en la zona de compresión. Adaptada de: [3]
Figura 3: Hipótesis de las NTC-2017 sobre la distribución de deformaciones y esfuerzos en la zona de compresión. Adaptada de: [3]

Donde:

Failed to parse (MathML with SVG or PNG fallback (recommended for modern browsers and accessibility tools): Invalid response ("Math extension cannot connect to Restbase.") from server "https://mathoid.scipedia.com/localhost/v1/":): C=ab(f{''}_{c})


Failed to parse (MathML with SVG or PNG fallback (recommended for modern browsers and accessibility tools): Invalid response ("Math extension cannot connect to Restbase.") from server "https://mathoid.scipedia.com/localhost/v1/":): 0.65<=(\beta _{1}=1.05-\frac{f{'}_{c}}{1400})<=0.85


6.4.2 Compresión y flexión en dos direcciones

2

Se usará la expresión siguiente (que es derivada de la fórmula de Bresler) para el cálculo de la carga máxima actuante en la sección a cierta excentricidad.

Failed to parse (MathML with SVG or PNG fallback (recommended for modern browsers and accessibility tools): Invalid response ("Math extension cannot connect to Restbase.") from server "https://mathoid.scipedia.com/localhost/v1/":): P_{R}=\frac{1}{\frac{1}{P_{rx}}+\frac{1}{P_{ry}}-\frac{1}{P_{oc}}}
(8)

Para valores de Failed to parse (MathML with SVG or PNG fallback (recommended for modern browsers and accessibility tools): Invalid response ("Math extension cannot connect to Restbase.") from server "https://mathoid.scipedia.com/localhost/v1/":): {\textstyle \frac{P_{R}}{P_{oc}}<0.1} , se usará la expresión siguiente:

Failed to parse (MathML with SVG or PNG fallback (recommended for modern browsers and accessibility tools): Invalid response ("Math extension cannot connect to Restbase.") from server "https://mathoid.scipedia.com/localhost/v1/":): \frac{M_{ux}}{M_{rx}}+\frac{M_{uy}}{M_{ry}}<=1.0
(9)

Donde:

Failed to parse (MathML with SVG or PNG fallback (recommended for modern browsers and accessibility tools): Invalid response ("Math extension cannot connect to Restbase.") from server "https://mathoid.scipedia.com/localhost/v1/":): M_{ux}

y Failed to parse (MathML with SVG or PNG fallback (recommended for modern browsers and accessibility tools): Invalid response ("Math extension cannot connect to Restbase.") from server "https://mathoid.scipedia.com/localhost/v1/":): M_{uy}
son los momentos actuantes alrededor de los ejes X, Y, respectivamente.

Failed to parse (MathML with SVG or PNG fallback (recommended for modern browsers and accessibility tools): Invalid response ("Math extension cannot connect to Restbase.") from server "https://mathoid.scipedia.com/localhost/v1/":): M_{rx}

y Failed to parse (MathML with SVG or PNG fallback (recommended for modern browsers and accessibility tools): Invalid response ("Math extension cannot connect to Restbase.") from server "https://mathoid.scipedia.com/localhost/v1/":): M_{ry}
son los momentos resistentes de diseño alrededor de los mismos ejes.

(1) El factor de reducción Failed to parse (MathML with SVG or PNG fallback (recommended for modern browsers and accessibility tools): Invalid response ("Math extension cannot connect to Restbase.") from server "https://mathoid.scipedia.com/localhost/v1/":): F_{R} , que para el caso de columnas con carga axial es de 0.8 [3]

(2) González Cuevas, Fco. Robles Fernández, “Aspectos básicos del Concreto Reforzado”, 4ª edición, Limusa (2005). Capítulo 6, p. 148.

7 El método del perfil idealizado de acero

7.1 Secciones rectangulares-modelo matemático

Empleando las hipótesis de diseño anteriormente descritas se ha idealizado el acero de refuerzo de un elemento como se muestra. Figura 4

Sección rectangular idealizada de concreto reforzado.
Figura 4: Sección rectangular idealizada de concreto reforzado.

Para estas secciones se desarrolló un método puramente matemático con ecuaciones que definieran la resistencia de la columna de acuerdo a la ubicación del eje neutro de esfuerzos en la sección siguiendo paramétros de geometrías. También se desarrolló un método numérico que resulta más sencillo de programar y se meustra justo después.

Tomando como referencia la siguiente figura Figura 5:

Sección rectangular idealizada de concreto reforzado.
Figura 5: Sección rectangular idealizada de concreto reforzado.

Donde:

Failed to parse (MathML with SVG or PNG fallback (recommended for modern browsers and accessibility tools): Invalid response ("Math extension cannot connect to Restbase.") from server "https://mathoid.scipedia.com/localhost/v1/":): t

= espesor de la sección transversal del acero de refuerzo idealizado como un refuerzo constante alrededor de la sección.

7.2 Casos de análisis para el cálculo de la resistencia del acero

De acuerdo a la distribución lineal de las deformaciónes unitarias y el comportamiento elasto-plástico del acero, se podrían derivar cinco casos de análisis respecto a las diferentes posiciones del eje neutro en el cálculo de nuestro diagrama de interacción, de acuerdo a los tipos de geometrías a que los mismos estados de esfuerzos (debido a dichas posiciones del eje neutro) sobre la sección transversal del elemento dan lugar. Estas configuraciones de geometrías de esfuerzos se pueden transformar consecuentemente a fuerzas puntuales Figura 6, con las que se pueden calcular el momento actuante respecto al eje neutro elástico de la sección transversal de todo el elemento de concreto.

Geometrías de bloques de distribución de esfuerzos para cierta posición del eje neutro.
Figura 6: Geometrías de bloques de distribución de esfuerzos para cierta posición del eje neutro.

7.2.1 Metodología

Se presenta la siguiente metodología de manera general para el análisis de las fuerzas y momentos de flexión resultantes, con la que se podrá conceptualizar y segmentar la manera en que se desarrollaron las fórmulas y ecuaciones.

Para las fuerzas resultantes resistentes:

Para cada bloque (Failed to parse (MathML with SVG or PNG fallback (recommended for modern browsers and accessibility tools): Invalid response ("Math extension cannot connect to Restbase.") from server "https://mathoid.scipedia.com/localhost/v1/":): i ) en un determinado estado de esfuerzos:

  • Determiar la longitud de la configuración geométrica de esfuerzos (Failed to parse (MathML with SVG or PNG fallback (recommended for modern browsers and accessibility tools): Invalid response ("Math extension cannot connect to Restbase.") from server "https://mathoid.scipedia.com/localhost/v1/":): {\textstyle L}

) en dirección al peralte de la sección.

  • Determinar el área efectiva bajo esfuerzos Failed to parse (MathML with SVG or PNG fallback (recommended for modern browsers and accessibility tools): Invalid response ("Math extension cannot connect to Restbase.") from server "https://mathoid.scipedia.com/localhost/v1/":): {\textstyle 2tL}


  • Determinar la fuerza resultante que define la geometría de dicha configuración de esfuerzos
Failed to parse (MathML with SVG or PNG fallback (recommended for modern browsers and accessibility tools): Invalid response ("Math extension cannot connect to Restbase.") from server "https://mathoid.scipedia.com/localhost/v1/":): F_{i} = \left\{ \begin{array}{ll} 2E_{ac}tL\varepsilon & \mathrm{si } \varepsilon{<}=0.0021 \\ 2f_{y}tL & \mathrm{si } \varepsilon{>0.0021} \end{array} \right.
(10)

Donde:

Failed to parse (MathML with SVG or PNG fallback (recommended for modern browsers and accessibility tools): Invalid response ("Math extension cannot connect to Restbase.") from server "https://mathoid.scipedia.com/localhost/v1/":): E_{ac}=\frac{fy}{\varepsilon _{y}}=\frac{4200 \frac{kg}{cm^2}}{0.0021}


Failed to parse (MathML with SVG or PNG fallback (recommended for modern browsers and accessibility tools): Invalid response ("Math extension cannot connect to Restbase.") from server "https://mathoid.scipedia.com/localhost/v1/":): {\textstyle E_{ac}=2e10 \frac{kg}{cm^{2}}}

  • Sumar todas las fuerzas resultantes de cada configuración geométrica de esfuerzos para obtener la resultante resistente:

Failed to parse (MathML with SVG or PNG fallback (recommended for modern browsers and accessibility tools): Invalid response ("Math extension cannot connect to Restbase.") from server "https://mathoid.scipedia.com/localhost/v1/":): F_{R}=\sum _{i=1}^{i=no.bloques}F_{i}


Para los momentos resultantes resistentes:

Para cada configuración geométrica (Failed to parse (MathML with SVG or PNG fallback (recommended for modern browsers and accessibility tools): Invalid response ("Math extension cannot connect to Restbase.") from server "https://mathoid.scipedia.com/localhost/v1/":): i ) en un determinado estado de esfuerzos:

  • Determiar la profundidad Failed to parse (MathML with SVG or PNG fallback (recommended for modern browsers and accessibility tools): Invalid response ("Math extension cannot connect to Restbase.") from server "https://mathoid.scipedia.com/localhost/v1/":): {\textstyle d_{i}}
del centroide de la configuración geométrica sobre el que actúa la fuerza resultante.
  • Determinar la distancia de ese punto respecto al eje centroidal de la sección transversal Failed to parse (MathML with SVG or PNG fallback (recommended for modern browsers and accessibility tools): Invalid response ("Math extension cannot connect to Restbase.") from server "https://mathoid.scipedia.com/localhost/v1/":): {\textstyle \frac{1}{2}h-d_{i}}


  • Determiar el Momento resultante equivalente:

Failed to parse (MathML with SVG or PNG fallback (recommended for modern browsers and accessibility tools): Invalid response ("Math extension cannot connect to Restbase.") from server "https://mathoid.scipedia.com/localhost/v1/":): M_{i}=F_{i}(\frac{1}{2}h-d_{i})


  • Sumar todas los momentos resultantes producidos por cada configuración geométrica de esfuerzos para obtener el momento de flexión resultante resistente:

Failed to parse (MathML with SVG or PNG fallback (recommended for modern browsers and accessibility tools): Invalid response ("Math extension cannot connect to Restbase.") from server "https://mathoid.scipedia.com/localhost/v1/":): M_{R}=\sum _{i=1}^{i=no.bloques}M_{i}


Tomar en cuenta que por ahora solo se está considerando el acero de refuerzo. De modo que para calcular el volumen de estas configuraciones geométricas de deformaciones (o fuerzas resultantes), se analiza el área de las dos partes laterales del perfil idealizado de acero Figura 5 y la de la parte superior e inferior por separado.

Para las partes laterales se toma referencia de la metodología descrita para esta geometría; tomando en cuenta una variación lineal de esfuerzos a lo largo de tales.

A diferencia de las partes superior en inferior en que se toma un esfuerzo constante a lo largo de la longitud de tales partes. De forma que aquí entrarán en lugar las fuerzas (Failed to parse (MathML with SVG or PNG fallback (recommended for modern browsers and accessibility tools): Invalid response ("Math extension cannot connect to Restbase.") from server "https://mathoid.scipedia.com/localhost/v1/":): F_{a}

y Failed to parse (MathML with SVG or PNG fallback (recommended for modern browsers and accessibility tools): Invalid response ("Math extension cannot connect to Restbase.") from server "https://mathoid.scipedia.com/localhost/v1/":): F_{b}

) Ecuación [ 11] y Ecuación [ 12] para todos los casos, representando las fuerzas resitentes resultantes que actuarán en los centroides de las partes superior en inferior del perfil de acero, supuestas como Failed to parse (MathML with SVG or PNG fallback (recommended for modern browsers and accessibility tools): Invalid response ("Math extension cannot connect to Restbase.") from server "https://mathoid.scipedia.com/localhost/v1/":): d_{1}

y Failed to parse (MathML with SVG or PNG fallback (recommended for modern browsers and accessibility tools): Invalid response ("Math extension cannot connect to Restbase.") from server "https://mathoid.scipedia.com/localhost/v1/":): d_{2}

, respectivamente.

Sección rectangular idealizada de concreto reforzado.
Figura 7: Sección rectangular idealizada de concreto reforzado.

Failed to parse (MathML with SVG or PNG fallback (recommended for modern browsers and accessibility tools): Invalid response ("Math extension cannot connect to Restbase.") from server "https://mathoid.scipedia.com/localhost/v1/":): F_{a}=\varepsilon _{a}E_{ac}t(b-2rec)
(11)

Failed to parse (MathML with SVG or PNG fallback (recommended for modern browsers and accessibility tools): Invalid response ("Math extension cannot connect to Restbase.") from server "https://mathoid.scipedia.com/localhost/v1/":): F_{b}=\varepsilon _{b}E_{ac}t(b-2rec)
(12)

Nota: La convención de signos será: Compresión (-) y Tensión (+).

7.2.2 Caso 1: se presenta una configuración geométrica de esfuerzos rectangular en tensión

Failed to parse (MathML with SVG or PNG fallback (recommended for modern browsers and accessibility tools): Invalid response ("Math extension cannot connect to Restbase.") from server "https://mathoid.scipedia.com/localhost/v1/":): -\infty{<}c<=\frac{30}{51}d_{1}

Ver Demostración 1.1 en Anexo 1 [p. actual]

En éste caso el elemento de concreto no se producen momentos de flexión por los bloques de estados de esfuerzo, únicamente fuerzas axiales a tensión. Figura 8

a) Diagrama de distribución de deformaciones. Caso 1. a) En alguna posición de c dentro del rango permitido, b) c está en el limite superior del rango permitido. Dibujo propio. Ver Demostración 1.1 en Anexo 1 [p. actual]
Figura 8: a) Diagrama de distribución de deformaciones. Caso 1. a) En alguna posición de c dentro del rango permitido, b) c está en el limite superior del rango permitido. Dibujo propio. Ver Demostración 1.1 en Anexo 1 [p. actual]

Donde:

Failed to parse (MathML with SVG or PNG fallback (recommended for modern browsers and accessibility tools): Invalid response ("Math extension cannot connect to Restbase.") from server "https://mathoid.scipedia.com/localhost/v1/":): d_{1}=rec+\frac{1}{2}(t)


Failed to parse (MathML with SVG or PNG fallback (recommended for modern browsers and accessibility tools): Invalid response ("Math extension cannot connect to Restbase.") from server "https://mathoid.scipedia.com/localhost/v1/":): {\textstyle d_{2}=h-rec-\frac{1}{2}(t)}


Por lo tanto, de las ecuaciones Ecuación 11 y Ecuación 12:

Failed to parse (MathML with SVG or PNG fallback (recommended for modern browsers and accessibility tools): Invalid response ("Math extension cannot connect to Restbase.") from server "https://mathoid.scipedia.com/localhost/v1/":): F_{a}=0.0021E_{ac}t(b-2rec)
(13)
Failed to parse (MathML with SVG or PNG fallback (recommended for modern browsers and accessibility tools): Invalid response ("Math extension cannot connect to Restbase.") from server "https://mathoid.scipedia.com/localhost/v1/":): F_{b}=0.0021E_{ac}t(b-2rec)
(14)

Failed to parse (MathML with SVG or PNG fallback (recommended for modern browsers and accessibility tools): Invalid response ("Math extension cannot connect to Restbase.") from server "https://mathoid.scipedia.com/localhost/v1/":): F_{1}=2(t)(d_{2}-d_{1})E_{ac}(0.0021)
(15)
Failed to parse (MathML with SVG or PNG fallback (recommended for modern browsers and accessibility tools): Invalid response ("Math extension cannot connect to Restbase.") from server "https://mathoid.scipedia.com/localhost/v1/":): M_{1}=0
(16)

Entonces, la fuerza y el momento neto resistente queda como:

Failed to parse (MathML with SVG or PNG fallback (recommended for modern browsers and accessibility tools): Invalid response ("Math extension cannot connect to Restbase.") from server "https://mathoid.scipedia.com/localhost/v1/":): F_{R}=F_{1}+F_{a}+F_{b}
(17)
Failed to parse (MathML with SVG or PNG fallback (recommended for modern browsers and accessibility tools): Invalid response ("Math extension cannot connect to Restbase.") from server "https://mathoid.scipedia.com/localhost/v1/":): M_{R}=M_{1}
(18)

7.2.3 Caso 2. Se presentan dos configuraciones geométricas rectangulares y una triangular, todas a tensión

Dando continuidad al caso anterior, el rango en el cual estará la profundidad del eje neutro para éste caso es:

Failed to parse (MathML with SVG or PNG fallback (recommended for modern browsers and accessibility tools): Invalid response ("Math extension cannot connect to Restbase.") from server "https://mathoid.scipedia.com/localhost/v1/":): \frac{30}{51}d_{1}<c<=d_{1}

Hágase referencia a Figura 9 para visualizar este rango.

a) Diagrama de configuracion geométrica de deformaciones en el límite inferior del eje neutro. b) Diagrama de configuración geométrica de deformaciones en el límite superior del eje neutro. c) Diagrama de configuración geométrica de deformaciones para cualquier posición del eje neutro dentro de rango permitido. (Dibujo propio). Ver Demostración 2.1 en Anexo 1 [p. actual]
Figura 9: a) Diagrama de configuracion geométrica de deformaciones en el límite inferior del eje neutro. b) Diagrama de configuración geométrica de deformaciones en el límite superior del eje neutro. c) Diagrama de configuración geométrica de deformaciones para cualquier posición del eje neutro dentro de rango permitido. (Dibujo propio). Ver Demostración 2.1 en Anexo 1 [p. actual]

Por lo tanto, de las ecuaciones Ecuación 11 y Ecuación 12:

Failed to parse (MathML with SVG or PNG fallback (recommended for modern browsers and accessibility tools): Invalid response ("Math extension cannot connect to Restbase.") from server "https://mathoid.scipedia.com/localhost/v1/":): F_{a}=0.0021E_{ac}t(b-2rec)
(19)
Failed to parse (MathML with SVG or PNG fallback (recommended for modern browsers and accessibility tools): Invalid response ("Math extension cannot connect to Restbase.") from server "https://mathoid.scipedia.com/localhost/v1/":): F_{b}=0.0021E_{ac}t(b-2rec)
(20)

Ahora, con las variables definidas anteriormente y la figura Figura 9, se pueden deducir las siguientes ecuaciones para calcular la fuerza resultante y el momento de flexión resultante resistente en el acero.

Failed to parse (MathML with SVG or PNG fallback (recommended for modern browsers and accessibility tools): Invalid response ("Math extension cannot connect to Restbase.") from server "https://mathoid.scipedia.com/localhost/v1/":): F_{1}=2(t)(\varepsilon )(h_{3}-(d_{1}-c))E_{ac}
(21)
Failed to parse (MathML with SVG or PNG fallback (recommended for modern browsers and accessibility tools): Invalid response ("Math extension cannot connect to Restbase.") from server "https://mathoid.scipedia.com/localhost/v1/":): M_{1}=F_{1}(d_{1}+\frac{1}{2}(h_{3}-(d_{1}-c)-\frac{1}{2}h)
(22)

Failed to parse (MathML with SVG or PNG fallback (recommended for modern browsers and accessibility tools): Invalid response ("Math extension cannot connect to Restbase.") from server "https://mathoid.scipedia.com/localhost/v1/":): F_{2}=2(t)\frac{1}{2}(0.0021-\varepsilon )(h_{3}-(d_{1}-c))E_{ac}
(23)
Failed to parse (MathML with SVG or PNG fallback (recommended for modern browsers and accessibility tools): Invalid response ("Math extension cannot connect to Restbase.") from server "https://mathoid.scipedia.com/localhost/v1/":): M_{2}=F_{2}(d_{1}+\frac{2}{3}(h_{3}-(d_{1}-c))-\frac{1}{2}h)
(24)
Failed to parse (MathML with SVG or PNG fallback (recommended for modern browsers and accessibility tools): Invalid response ("Math extension cannot connect to Restbase.") from server "https://mathoid.scipedia.com/localhost/v1/":): F_{3}=2(t)(d_{2}-h_{3}-c)(0.0021)E_{ac}
(25)
Failed to parse (MathML with SVG or PNG fallback (recommended for modern browsers and accessibility tools): Invalid response ("Math extension cannot connect to Restbase.") from server "https://mathoid.scipedia.com/localhost/v1/":): M_{3}=F_{3}(c+h_{3}+\frac{1}{2}(d_{2}-c-h_{3})-\frac{1}{2}h)
(26)

Quedando, la fuerza y momento neto resistente como:

Failed to parse (MathML with SVG or PNG fallback (recommended for modern browsers and accessibility tools): Invalid response ("Math extension cannot connect to Restbase.") from server "https://mathoid.scipedia.com/localhost/v1/":): F_{R}=F_{1}+F_{2}+F_{3}+F_{a}+F_{b}
(27)

De modo que el momento par resistente del acero en éste caso, estará dado por:

Failed to parse (MathML with SVG or PNG fallback (recommended for modern browsers and accessibility tools): Invalid response ("Math extension cannot connect to Restbase.") from server "https://mathoid.scipedia.com/localhost/v1/":): M_{R}=M_{1}+M_{2}+M_{3}+F_{a}(d_{1}-\frac{1}{2}h)+F_{b}(d_{2}-\frac{1}{2}h)
(28)

7.2.4 Caso 3; Se presenta una configuración geométrica de deformaciones triangular a compresión, una triangular a tensión y una rectangular a tensión

Para que esto ocurra, la profundidad del eje neutro deberá estar entre el siguiente rango:

Failed to parse (MathML with SVG or PNG fallback (recommended for modern browsers and accessibility tools): Invalid response ("Math extension cannot connect to Restbase.") from server "https://mathoid.scipedia.com/localhost/v1/":): d_{1}<c<=\frac{30}{9}d_{1}

Hágase referencia a Figura 10 para visualizar este rango.

a) Sección transversal, b) Configuraciones geométricas de deformaciones en el límite inferior del rango permitido del eje neutro, c) Configuraciones geométricas de deformaciones en el límite superior del rango permitido del eje neutro. Dibujo propio. Ver Demostración 3.1 en Anexo 1 [p. actual]
Figura 10: a) Sección transversal, b) Configuraciones geométricas de deformaciones en el límite inferior del rango permitido del eje neutro, c) Configuraciones geométricas de deformaciones en el límite superior del rango permitido del eje neutro. Dibujo propio. Ver Demostración 3.1 en Anexo 1 [p. actual]

Donde:

Failed to parse (MathML with SVG or PNG fallback (recommended for modern browsers and accessibility tools): Invalid response ("Math extension cannot connect to Restbase.") from server "https://mathoid.scipedia.com/localhost/v1/":): h_{2}=\frac{21}{30}c


De modo que para definir las ecuaciones Ecuación 11 y Ecuación 12 se tiene:

Failed to parse (MathML with SVG or PNG fallback (recommended for modern browsers and accessibility tools): Invalid response ("Math extension cannot connect to Restbase.") from server "https://mathoid.scipedia.com/localhost/v1/":): \varepsilon _{a}=(1-\frac{d_{1}}{c})(0.003)


Failed to parse (MathML with SVG or PNG fallback (recommended for modern browsers and accessibility tools): Invalid response ("Math extension cannot connect to Restbase.") from server "https://mathoid.scipedia.com/localhost/v1/":): {\textstyle \varepsilon _{b}=0.0021}


Y para las fuerzas y momentos resistentes resultantes, se tiene:

Failed to parse (MathML with SVG or PNG fallback (recommended for modern browsers and accessibility tools): Invalid response ("Math extension cannot connect to Restbase.") from server "https://mathoid.scipedia.com/localhost/v1/":): F_{1}=-\frac{1}{2}(c-d_{1})(\varepsilon _{a})(2t)E_{ac}
(29)
Failed to parse (MathML with SVG or PNG fallback (recommended for modern browsers and accessibility tools): Invalid response ("Math extension cannot connect to Restbase.") from server "https://mathoid.scipedia.com/localhost/v1/":): M_{1}=F_{1}(d_{1}+\frac{1}{3}(c-d_{1})-\frac{1}{2}h)
(30)
Failed to parse (MathML with SVG or PNG fallback (recommended for modern browsers and accessibility tools): Invalid response ("Math extension cannot connect to Restbase.") from server "https://mathoid.scipedia.com/localhost/v1/":): F_{2}=\frac{1}{2}h_{2}(0.0021)(2t)E_{ac}
(31)
Failed to parse (MathML with SVG or PNG fallback (recommended for modern browsers and accessibility tools): Invalid response ("Math extension cannot connect to Restbase.") from server "https://mathoid.scipedia.com/localhost/v1/":): M_{2}=F_{2}(c+\frac{2}{3}h_{2}-\frac{1}{2}h)
(32)
Failed to parse (MathML with SVG or PNG fallback (recommended for modern browsers and accessibility tools): Invalid response ("Math extension cannot connect to Restbase.") from server "https://mathoid.scipedia.com/localhost/v1/":): F_{3}=0.0021(d_{2}-c-h_{2})(2t))E_{ac}
(33)
Failed to parse (MathML with SVG or PNG fallback (recommended for modern browsers and accessibility tools): Invalid response ("Math extension cannot connect to Restbase.") from server "https://mathoid.scipedia.com/localhost/v1/":): M_{3}=F_{3}((c+h_{2})+\frac{1}{2}(d_{2}-c-h_{2})-\frac{1}{2}h)
(34)
Failed to parse (MathML with SVG or PNG fallback (recommended for modern browsers and accessibility tools): Invalid response ("Math extension cannot connect to Restbase.") from server "https://mathoid.scipedia.com/localhost/v1/":): F_{R}=F_{1}+F_{2}+F_{3}-F_{a}+F_{b}
(35)
Failed to parse (MathML with SVG or PNG fallback (recommended for modern browsers and accessibility tools): Invalid response ("Math extension cannot connect to Restbase.") from server "https://mathoid.scipedia.com/localhost/v1/":): M_{R}=M_{1}+M_{2}+M_{3}-F_{a}(d_{1}-\frac{1}{2}h)+F_{b}(d_{2}-\frac{1}{2}h)
(36)

7.2.5 Caso especial. Se presentan únicamente configuraciones geométricas triangulares de deformaciones

Para que se dé éste caso, se debe dar la siguiente relación entre el espesor del perfil Failed to parse (MathML with SVG or PNG fallback (recommended for modern browsers and accessibility tools): Invalid response ("Math extension cannot connect to Restbase.") from server "https://mathoid.scipedia.com/localhost/v1/":): (t) , el peralte de la sección Failed to parse (MathML with SVG or PNG fallback (recommended for modern browsers and accessibility tools): Invalid response ("Math extension cannot connect to Restbase.") from server "https://mathoid.scipedia.com/localhost/v1/":): (h)

y el recubrimiento Failed to parse (MathML with SVG or PNG fallback (recommended for modern browsers and accessibility tools): Invalid response ("Math extension cannot connect to Restbase.") from server "https://mathoid.scipedia.com/localhost/v1/":): (rec)

.

Failed to parse (MathML with SVG or PNG fallback (recommended for modern browsers and accessibility tools): Invalid response ("Math extension cannot connect to Restbase.") from server "https://mathoid.scipedia.com/localhost/v1/":): \frac{60}{102}t>=\frac{9}{51}h-\frac{60}{51}rec
(37)

Nota: Ver Demostración CE.1 en Anexo 1. p. actual

De la misma demostración se puede ver, que para calcular Failed to parse (MathML with SVG or PNG fallback (recommended for modern browsers and accessibility tools): Invalid response ("Math extension cannot connect to Restbase.") from server "https://mathoid.scipedia.com/localhost/v1/":): {\textstyle C_{min}}

y Failed to parse (MathML with SVG or PNG fallback (recommended for modern browsers and accessibility tools): Invalid response ("Math extension cannot connect to Restbase.") from server "https://mathoid.scipedia.com/localhost/v1/":): {\textstyle C_{max}}

Failed to parse (MathML with SVG or PNG fallback (recommended for modern browsers and accessibility tools): Invalid response ("Math extension cannot connect to Restbase.") from server "https://mathoid.scipedia.com/localhost/v1/":): C_{min}=30(\frac{d_{2}}{51})


Failed to parse (MathML with SVG or PNG fallback (recommended for modern browsers and accessibility tools): Invalid response ("Math extension cannot connect to Restbase.") from server "https://mathoid.scipedia.com/localhost/v1/":): {\textstyle C_{max}=30(\frac{d_{1}}{9})}


Diagrama de configuraciones geométricas de deformaciones para el caso especial. a) Para la posición del eje neutro en el límite inferior, b) Para la posición del eje neutro en el límite superior. Dibujo propio.
Figura 11: Diagrama de configuraciones geométricas de deformaciones para el caso especial. a) Para la posición del eje neutro en el límite inferior, b) Para la posición del eje neutro en el límite superior. Dibujo propio.

Por lo tanto, haciendo referencia a la Figura 11, para las ecuaciones Ecuación 11 y Ecuación 12:

Failed to parse (MathML with SVG or PNG fallback (recommended for modern browsers and accessibility tools): Invalid response ("Math extension cannot connect to Restbase.") from server "https://mathoid.scipedia.com/localhost/v1/":): \varepsilon _{a}=(1-\frac{d_{1}}{c})(0.003)


Failed to parse (MathML with SVG or PNG fallback (recommended for modern browsers and accessibility tools): Invalid response ("Math extension cannot connect to Restbase.") from server "https://mathoid.scipedia.com/localhost/v1/":): {\textstyle \varepsilon _{b}=(\frac{d_{2}}{c}-1)(0.003)}


Y las fuerzas y momentos resistentes se calcularían como:

Failed to parse (MathML with SVG or PNG fallback (recommended for modern browsers and accessibility tools): Invalid response ("Math extension cannot connect to Restbase.") from server "https://mathoid.scipedia.com/localhost/v1/":): F_{1}=-\frac{1}{2}\varepsilon _{a}E_{ac}(c-d_{1})2t
(38)
Failed to parse (MathML with SVG or PNG fallback (recommended for modern browsers and accessibility tools): Invalid response ("Math extension cannot connect to Restbase.") from server "https://mathoid.scipedia.com/localhost/v1/":): M_{1}=-F_{1}(d_{1}+\frac{1}{3}(c-d_{1}))
(39)
Failed to parse (MathML with SVG or PNG fallback (recommended for modern browsers and accessibility tools): Invalid response ("Math extension cannot connect to Restbase.") from server "https://mathoid.scipedia.com/localhost/v1/":): F_{2}=\frac{1}{2}\varepsilon _{b}E_{ac}(d_{2}-c)2t
(40)
Failed to parse (MathML with SVG or PNG fallback (recommended for modern browsers and accessibility tools): Invalid response ("Math extension cannot connect to Restbase.") from server "https://mathoid.scipedia.com/localhost/v1/":): M_{2}=F_{2}(d_{2}-\frac{1}{3}(d_{2}-c))
(41)
Failed to parse (MathML with SVG or PNG fallback (recommended for modern browsers and accessibility tools): Invalid response ("Math extension cannot connect to Restbase.") from server "https://mathoid.scipedia.com/localhost/v1/":): F_{R}=F_{1}+F_{2}-F_{a}+F_{b}
(42)
Failed to parse (MathML with SVG or PNG fallback (recommended for modern browsers and accessibility tools): Invalid response ("Math extension cannot connect to Restbase.") from server "https://mathoid.scipedia.com/localhost/v1/":): M_{R}=M_{1}+M_{2}-F_{a}(d_{1}-\frac{1}{3}h)+F_{b}(d_{2}-\frac{1}{2}h)
(43)

7.2.6 Caso 3-4: Se presentan configuraciones geométricas de deformaciónes triangular y rectangular a compresión, así como a tensión.

Failed to parse (MathML with SVG or PNG fallback (recommended for modern browsers and accessibility tools): Invalid response ("Math extension cannot connect to Restbase.") from server "https://mathoid.scipedia.com/localhost/v1/":): {\textstyle \frac{30}{9}d_{1}<c<=\frac{30}{51}d_{2}}


Hágase referencia a Figura 10 para visualizar este rango.

a) Diagrama de configuraciones geométricas de deformaciones para el límite inferior del rango permitido del eje neutro, b) Diagrama de configuraciones geométricas de deformaciones para el límite superior del rango permitido del eje neutro. c) Diagrama configuraciones geométricas de deformaciones para cualquiera posición del eje neutro entre el rango permitido. Caso 3-4.
Figura 12: a) Diagrama de configuraciones geométricas de deformaciones para el límite inferior del rango permitido del eje neutro, b) Diagrama de configuraciones geométricas de deformaciones para el límite superior del rango permitido del eje neutro. c) Diagrama configuraciones geométricas de deformaciones para cualquiera posición del eje neutro entre el rango permitido. Caso 3-4.

Donde: Failed to parse (MathML with SVG or PNG fallback (recommended for modern browsers and accessibility tools): Invalid response ("Math extension cannot connect to Restbase.") from server "https://mathoid.scipedia.com/localhost/v1/":): s_{1}=\frac{9}{30}c-d_{1}


Failed to parse (MathML with SVG or PNG fallback (recommended for modern browsers and accessibility tools): Invalid response ("Math extension cannot connect to Restbase.") from server "https://mathoid.scipedia.com/localhost/v1/":): {\textstyle s_{2}=h-\frac{51}{30}c-d_{1}}


Por lo tanto, para las ecuaciones Ecuación 11 y Ecuación 12:

Failed to parse (MathML with SVG or PNG fallback (recommended for modern browsers and accessibility tools): Invalid response ("Math extension cannot connect to Restbase.") from server "https://mathoid.scipedia.com/localhost/v1/":): \varepsilon _{a}=0.0021


Failed to parse (MathML with SVG or PNG fallback (recommended for modern browsers and accessibility tools): Invalid response ("Math extension cannot connect to Restbase.") from server "https://mathoid.scipedia.com/localhost/v1/":): {\textstyle \varepsilon _{b}=0.0021}


Y las fuerzas y momentos resistentes se calcularían como:

Failed to parse (MathML with SVG or PNG fallback (recommended for modern browsers and accessibility tools): Invalid response ("Math extension cannot connect to Restbase.") from server "https://mathoid.scipedia.com/localhost/v1/":): F_{1}=-2t(0.0021)(s_{1})E_{ac}
(44)
Failed to parse (MathML with SVG or PNG fallback (recommended for modern browsers and accessibility tools): Invalid response ("Math extension cannot connect to Restbase.") from server "https://mathoid.scipedia.com/localhost/v1/":): M_{1}=F_{1}(d_{1}+\frac{1}{2}(s_{1})-\frac{1}{2}h)
(45)
Failed to parse (MathML with SVG or PNG fallback (recommended for modern browsers and accessibility tools): Invalid response ("Math extension cannot connect to Restbase.") from server "https://mathoid.scipedia.com/localhost/v1/":): F_{2}=-\frac{1}{2}2t(0.0021)(c-s_{1}-d_{1})E_{ac}
(46)
Failed to parse (MathML with SVG or PNG fallback (recommended for modern browsers and accessibility tools): Invalid response ("Math extension cannot connect to Restbase.") from server "https://mathoid.scipedia.com/localhost/v1/":): M_{2}=F_{2}(d_{1}+s_{1}+\frac{1}{3}((c-d_{1}-s_{1}))-\frac{1}{2}h)
(47)
Failed to parse (MathML with SVG or PNG fallback (recommended for modern browsers and accessibility tools): Invalid response ("Math extension cannot connect to Restbase.") from server "https://mathoid.scipedia.com/localhost/v1/":): F_{3}=\frac{1}{2}2t(0.0021)(d_{2}-c-s_{2})E_{ac}
(48)
Failed to parse (MathML with SVG or PNG fallback (recommended for modern browsers and accessibility tools): Invalid response ("Math extension cannot connect to Restbase.") from server "https://mathoid.scipedia.com/localhost/v1/":): M_{3}=F_{3}(d_{2}-s_{2}-\frac{1}{3}(d_{2}-c-s_{2})-\frac{1}{2}h)
(49)
Failed to parse (MathML with SVG or PNG fallback (recommended for modern browsers and accessibility tools): Invalid response ("Math extension cannot connect to Restbase.") from server "https://mathoid.scipedia.com/localhost/v1/":): F_{4}=2t(0.0021)(s_{2})E_{ac}
(50)
Failed to parse (MathML with SVG or PNG fallback (recommended for modern browsers and accessibility tools): Invalid response ("Math extension cannot connect to Restbase.") from server "https://mathoid.scipedia.com/localhost/v1/":): M_{4}=F_{4}(d_{2}-\frac{1}{2}s_{2})-\frac{1}{2}h)
(51)
Failed to parse (MathML with SVG or PNG fallback (recommended for modern browsers and accessibility tools): Invalid response ("Math extension cannot connect to Restbase.") from server "https://mathoid.scipedia.com/localhost/v1/":): F_{R}=F_{1}+F_{2}+F_{3}+F_{4}-F_{a}-F_{b}
(52)
Failed to parse (MathML with SVG or PNG fallback (recommended for modern browsers and accessibility tools): Invalid response ("Math extension cannot connect to Restbase.") from server "https://mathoid.scipedia.com/localhost/v1/":): M_{R}=M_{1}+M_{2}+M_{3}+M_{4}
Failed to parse (MathML with SVG or PNG fallback (recommended for modern browsers and accessibility tools): Invalid response ("Math extension cannot connect to Restbase.") from server "https://mathoid.scipedia.com/localhost/v1/":): -F_{a}(d_{1}-\frac{1}{2}h)-F_{b}(d_{2}-\frac{1}{2}h)
(53)

7.2.7 Caso 4: Se presenta una configuración geométrica de deformaciones triangular y una rectangular a compresión; y una triangular a tensión.

Failed to parse (MathML with SVG or PNG fallback (recommended for modern browsers and accessibility tools): Invalid response ("Math extension cannot connect to Restbase.") from server "https://mathoid.scipedia.com/localhost/v1/":): {\textstyle \frac{30}{51}d_{2}<c<=d_{2}}


Para el cálculo de las fuerzas y momentos de flexión resultantes resistentes ha de hacerse referencia tanto a la Figura 13..

a) Diagrama configuraciones geométricas de deformaciones para el límite inferior del rango permitido del eje neutro. b) Diagrama de configuraciones geométricas de deformaciones para el límite superior del rango permitido del eje neutro. c) Diagrama de configuraciones geométricas de deformaciones para cualquiera posición del eje neutro entre su rango permitido. Caso 4.
Figura 13: a) Diagrama configuraciones geométricas de deformaciones para el límite inferior del rango permitido del eje neutro. b) Diagrama de configuraciones geométricas de deformaciones para el límite superior del rango permitido del eje neutro. c) Diagrama de configuraciones geométricas de deformaciones para cualquiera posición del eje neutro entre su rango permitido. Caso 4.

Donde: Failed to parse (MathML with SVG or PNG fallback (recommended for modern browsers and accessibility tools): Invalid response ("Math extension cannot connect to Restbase.") from server "https://mathoid.scipedia.com/localhost/v1/":): h_{4}=(1-\frac{21}{30}-\frac{d_{1}}{c})c


Failed to parse (MathML with SVG or PNG fallback (recommended for modern browsers and accessibility tools): Invalid response ("Math extension cannot connect to Restbase.") from server "https://mathoid.scipedia.com/localhost/v1/":): {\textstyle \varepsilon=0.003(\frac{d_{2}}{c}-1)}


Nota: Ver demostración 4.1 en Anexo 1 p. actual

Por lo tanto, para las ecuaciones Ecuación 11 y Ecuación 12:

Failed to parse (MathML with SVG or PNG fallback (recommended for modern browsers and accessibility tools): Invalid response ("Math extension cannot connect to Restbase.") from server "https://mathoid.scipedia.com/localhost/v1/":): \varepsilon _{a}=0.0021


Failed to parse (MathML with SVG or PNG fallback (recommended for modern browsers and accessibility tools): Invalid response ("Math extension cannot connect to Restbase.") from server "https://mathoid.scipedia.com/localhost/v1/":): {\textstyle \varepsilon _{b}=\varepsilon }


Entonces las fuerzas y momentos resistentes se calculan como:

Failed to parse (MathML with SVG or PNG fallback (recommended for modern browsers and accessibility tools): Invalid response ("Math extension cannot connect to Restbase.") from server "https://mathoid.scipedia.com/localhost/v1/":): F_{1}=-2t(0.0021)h_{4}E_{ac}
(54)
Failed to parse (MathML with SVG or PNG fallback (recommended for modern browsers and accessibility tools): Invalid response ("Math extension cannot connect to Restbase.") from server "https://mathoid.scipedia.com/localhost/v1/":): M_{1}=F_{1}((d_{1}+\frac{1}{2}h_{4})-\frac{1}{2}h)
(55)
Failed to parse (MathML with SVG or PNG fallback (recommended for modern browsers and accessibility tools): Invalid response ("Math extension cannot connect to Restbase.") from server "https://mathoid.scipedia.com/localhost/v1/":): F_{2}=-\frac{1}{2}2t(0.0021)(c-d_{1}-h_{4})E_{ac}
(56)
Failed to parse (MathML with SVG or PNG fallback (recommended for modern browsers and accessibility tools): Invalid response ("Math extension cannot connect to Restbase.") from server "https://mathoid.scipedia.com/localhost/v1/":): M_{2}=F_{2}(\frac{2}{3}(d_{1}+h_{4}+\frac{1}{2}c)-\frac{1}{2}h)
(57)
Failed to parse (MathML with SVG or PNG fallback (recommended for modern browsers and accessibility tools): Invalid response ("Math extension cannot connect to Restbase.") from server "https://mathoid.scipedia.com/localhost/v1/":): F_{3}=\frac{1}{2}2t\varepsilon (d_{2}-c)E_{ac}
(58)
Failed to parse (MathML with SVG or PNG fallback (recommended for modern browsers and accessibility tools): Invalid response ("Math extension cannot connect to Restbase.") from server "https://mathoid.scipedia.com/localhost/v1/":): M_{3}=F_{3}((\frac{1}{3}c+\frac{2}{3}d_{2})-\frac{1}{2}h)
(59)
Failed to parse (MathML with SVG or PNG fallback (recommended for modern browsers and accessibility tools): Invalid response ("Math extension cannot connect to Restbase.") from server "https://mathoid.scipedia.com/localhost/v1/":): F_{R}=F_{1}+F_{2}+F_{3}-F_{a}+F_{b}
(60)
Failed to parse (MathML with SVG or PNG fallback (recommended for modern browsers and accessibility tools): Invalid response ("Math extension cannot connect to Restbase.") from server "https://mathoid.scipedia.com/localhost/v1/":): M_{R}=M_{1}+M_{2}+M_{3}-F_{a}(d_{1}-\frac{1}{2}h)+F_{b}(d_{2}-\frac{1}{2}h)
(61)

7.2.8 Caso 5. Se presentan dos bloques rectangulares y uno triangular, todos a compresión.

Failed to parse (MathML with SVG or PNG fallback (recommended for modern browsers and accessibility tools): Invalid response ("Math extension cannot connect to Restbase.") from server "https://mathoid.scipedia.com/localhost/v1/":): {\textstyle d_{2}<c<=\frac{30}{9}d_{2}}


Para visualizar este rango hágase referencia a la siguietne figura Figura 14 y a la demostración que se indíca en la leyenda de la misma figura.

a) Diagrama de configuraciones geométricas de deformaciones en el límite inferior del eje neutro. b) Diagrama de configuraciones geométricas de deformaciones en el límite superior del eje neutro. Caso 5. Dibujo propio. Ver demostración 5.1 en Anexo 1 p. actual
Figura 14: a) Diagrama de configuraciones geométricas de deformaciones en el límite inferior del eje neutro. b) Diagrama de configuraciones geométricas de deformaciones en el límite superior del eje neutro. Caso 5. Dibujo propio. Ver demostración 5.1 en Anexo 1 p. actual

Donde: Failed to parse (MathML with SVG or PNG fallback (recommended for modern browsers and accessibility tools): Invalid response ("Math extension cannot connect to Restbase.") from server "https://mathoid.scipedia.com/localhost/v1/":): h_{5}=\frac{9}{30}c


Failed to parse (MathML with SVG or PNG fallback (recommended for modern browsers and accessibility tools): Invalid response ("Math extension cannot connect to Restbase.") from server "https://mathoid.scipedia.com/localhost/v1/":): {\textstyle \varepsilon _{3}=0.0021-\frac{0.003}{c}(d_{2}-h_{5})}


Por lo tanto, para las ecuaciones Ecuación 11 y Ecuación 12:

Failed to parse (MathML with SVG or PNG fallback (recommended for modern browsers and accessibility tools): Invalid response ("Math extension cannot connect to Restbase.") from server "https://mathoid.scipedia.com/localhost/v1/":): \varepsilon _{a}=0.0021


Failed to parse (MathML with SVG or PNG fallback (recommended for modern browsers and accessibility tools): Invalid response ("Math extension cannot connect to Restbase.") from server "https://mathoid.scipedia.com/localhost/v1/":): {\textstyle \varepsilon _{b}=\varepsilon _{3}}


Y las fuerzas y momentos resutaltantes resistentes se calculan como:

Failed to parse (MathML with SVG or PNG fallback (recommended for modern browsers and accessibility tools): Invalid response ("Math extension cannot connect to Restbase.") from server "https://mathoid.scipedia.com/localhost/v1/":): F_{1}=-2t(0.0021)(h_{5}-d_{1})E_{ac}
(62)
Failed to parse (MathML with SVG or PNG fallback (recommended for modern browsers and accessibility tools): Invalid response ("Math extension cannot connect to Restbase.") from server "https://mathoid.scipedia.com/localhost/v1/":): M_{1}=F_{1}(\frac{1}{2}(h_{5}+d_{1})-\frac{1}{2}h)
(63)
Failed to parse (MathML with SVG or PNG fallback (recommended for modern browsers and accessibility tools): Invalid response ("Math extension cannot connect to Restbase.") from server "https://mathoid.scipedia.com/localhost/v1/":): F_{2}=-\frac{1}{2}2t(0.0021-\varepsilon _{b})(d_{2}-h_{5})E_{ac}
(64)
Failed to parse (MathML with SVG or PNG fallback (recommended for modern browsers and accessibility tools): Invalid response ("Math extension cannot connect to Restbase.") from server "https://mathoid.scipedia.com/localhost/v1/":): M_{2}=F_{2}(\frac{2}{3}(h_{5}+\frac{1}{2}d_{2})-\frac{1}{2}h)
(65)
Failed to parse (MathML with SVG or PNG fallback (recommended for modern browsers and accessibility tools): Invalid response ("Math extension cannot connect to Restbase.") from server "https://mathoid.scipedia.com/localhost/v1/":): F_{3}=-\varepsilon _{b}(d_{2}-h_{5})2tE_{ac}
(66)
Failed to parse (MathML with SVG or PNG fallback (recommended for modern browsers and accessibility tools): Invalid response ("Math extension cannot connect to Restbase.") from server "https://mathoid.scipedia.com/localhost/v1/":): M_{3}=F_{3}(\frac{1}{2}(d_{2}+h_{5})-\frac{1}{2}h)
(67)
Failed to parse (MathML with SVG or PNG fallback (recommended for modern browsers and accessibility tools): Invalid response ("Math extension cannot connect to Restbase.") from server "https://mathoid.scipedia.com/localhost/v1/":): F_{R}=F_{1}+F_{2}+F_{3}-F_{a}-F_{b}
(68)
Failed to parse (MathML with SVG or PNG fallback (recommended for modern browsers and accessibility tools): Invalid response ("Math extension cannot connect to Restbase.") from server "https://mathoid.scipedia.com/localhost/v1/":): M_{R}=M_{1}+M_{2}+M_{3}-F_{a}(d_{1}-\frac{1}{2}h)-F_{b}(d_{2}-\frac{1}{2}h)
(69)

7.2.9 Caso 6. Un bloque rectangular de esfuerzos en compresión

Failed to parse (MathML with SVG or PNG fallback (recommended for modern browsers and accessibility tools): Invalid response ("Math extension cannot connect to Restbase.") from server "https://mathoid.scipedia.com/localhost/v1/":): {\textstyle c>\frac{30}{9}d_{2}}


Diagrama de configuraciones geométricas de deformaciones a compresión pura (el eje neutro esta localizado justo en el límite inferior de su rango permitido)). Caso 6. (Dibujo propio.) Ver demostración 6.1 en Anexo 1.  actual
Figura 15: Diagrama de configuraciones geométricas de deformaciones a compresión pura (el eje neutro esta localizado justo en el límite inferior de su rango permitido)). Caso 6. (Dibujo propio.) Ver demostración 6.1 en Anexo 1. actual

En este caso la sección resistirá únicamente fuerzas axiales a compresión, y no momentos de flexión, Figura 15 pues el bloque se esfuerzos que se genera tiene como punto de acción justo el eje de centroide de la sección misma.

Por lo tanto:

Failed to parse (MathML with SVG or PNG fallback (recommended for modern browsers and accessibility tools): Invalid response ("Math extension cannot connect to Restbase.") from server "https://mathoid.scipedia.com/localhost/v1/":): F_{1}=-0.0021(d_{2}-d_{1})E_{ac}2t
(70)
Failed to parse (MathML with SVG or PNG fallback (recommended for modern browsers and accessibility tools): Invalid response ("Math extension cannot connect to Restbase.") from server "https://mathoid.scipedia.com/localhost/v1/":): F_{R}=F_{1}-F_{a}-F_{b}
(71)
Failed to parse (MathML with SVG or PNG fallback (recommended for modern browsers and accessibility tools): Invalid response ("Math extension cannot connect to Restbase.") from server "https://mathoid.scipedia.com/localhost/v1/":): M_{R}=0
(72)

7.2.10 Casos de análisis para el concreto

Lo que se pretende aquí es encontrar el área neta del concreto bajo esfuerzos para cualquier valor en la profundidad del eje neutro Figura 17. Al ser una sección rectangular, el análisis se simplifica a un solo caso, ya que el área variará uniformemente a lo largo de todo el peralte de la sección, ya sea respecto al eje X o Y. A partir de esa área neta se determinará el volumen del bloque de esfuerzos-deformaciones resultante de compresión en unidades de Fuerza, y posteriormente el momento de flexión resultante respecto al eje del centroide de la sección como sigue:

Diagrama de bloque equivalente de esuferzos de compresión en el concreto. Dibujo propio.
Figura 16: Diagrama de bloque equivalente de esuferzos de compresión en el concreto. Dibujo propio.

Failed to parse (MathML with SVG or PNG fallback (recommended for modern browsers and accessibility tools): Invalid response ("Math extension cannot connect to Restbase.") from server "https://mathoid.scipedia.com/localhost/v1/":): C=-abf{''}c
(73)

Failed to parse (MathML with SVG or PNG fallback (recommended for modern browsers and accessibility tools): Invalid response ("Math extension cannot connect to Restbase.") from server "https://mathoid.scipedia.com/localhost/v1/":): M_{c}=-C(\frac{h}{2}-\frac{a}{2})
(74)
Diagrama tridimensional del bloque equivalente de esfuerzos de compresión en el concreto. Dibujo propio.
Figura 17: Diagrama tridimensional del bloque equivalente de esfuerzos de compresión en el concreto. Dibujo propio.

7.3 Secciones rectangulares-modelo numérico

Siguiendo la misma idealización del perfil de acero que en el modelo matemático se tiene Figura 18:

Modelo geométrico para la metodología numérica de análisis:  Dibujo propio.
Figura 18: Modelo geométrico para la metodología numérica de análisis: Dibujo propio.

Donde:

Failed to parse (MathML with SVG or PNG fallback (recommended for modern browsers and accessibility tools): Invalid response ("Math extension cannot connect to Restbase.") from server "https://mathoid.scipedia.com/localhost/v1/":): dA_{ac}=dL(t)


Failed to parse (MathML with SVG or PNG fallback (recommended for modern browsers and accessibility tools): Invalid response ("Math extension cannot connect to Restbase.") from server "https://mathoid.scipedia.com/localhost/v1/":): {\textstyle L=h-2rec}


Failed to parse (MathML with SVG or PNG fallback (recommended for modern browsers and accessibility tools): Invalid response ("Math extension cannot connect to Restbase.") from server "https://mathoid.scipedia.com/localhost/v1/":): {\textstyle dL=\frac{L}{nElementos}}


Failed to parse (MathML with SVG or PNG fallback (recommended for modern browsers and accessibility tools): Invalid response ("Math extension cannot connect to Restbase.") from server "https://mathoid.scipedia.com/localhost/v1/":): {\textstyle nElementos=}

Número de elementos

7.3.1 Cálculo de la resistencia del acero

Metodología

Para la determinación de la resistencia de carga axial y flexión se sigue la siguiente metodología:

  • Determinar la distancia de cada segmento de perfil con respecto a la fibra superior más alejada de la sección transversal del elemento de concreto Failed to parse (MathML with SVG or PNG fallback (recommended for modern browsers and accessibility tools): Invalid response ("Math extension cannot connect to Restbase.") from server "https://mathoid.scipedia.com/localhost/v1/":): {\textstyle d}
.

Para las partes superior e inferior del perfil se tiene:

Failed to parse (MathML with SVG or PNG fallback (recommended for modern browsers and accessibility tools): Invalid response ("Math extension cannot connect to Restbase.") from server "https://mathoid.scipedia.com/localhost/v1/":): F_{a}=\varepsilon _{a}E_{ac}t(b-2rec)
(75)

Failed to parse (MathML with SVG or PNG fallback (recommended for modern browsers and accessibility tools): Invalid response ("Math extension cannot connect to Restbase.") from server "https://mathoid.scipedia.com/localhost/v1/":): F_{b}=\varepsilon _{b}E_{ac}t(b-2rec)
(76)
Failed to parse (MathML with SVG or PNG fallback (recommended for modern browsers and accessibility tools): Invalid response ("Math extension cannot connect to Restbase.") from server "https://mathoid.scipedia.com/localhost/v1/":): M_{a,b}=F_{a}(d_{1}-\frac{1}{2}h)+F_{b}(d_{2}-\frac{1}{2}h)
(77)

Donde:

Failed to parse (MathML with SVG or PNG fallback (recommended for modern browsers and accessibility tools): Invalid response ("Math extension cannot connect to Restbase.") from server "https://mathoid.scipedia.com/localhost/v1/":): \varepsilon _{a}=(1-\frac{d_{1}}{c})(0.003)


Failed to parse (MathML with SVG or PNG fallback (recommended for modern browsers and accessibility tools): Invalid response ("Math extension cannot connect to Restbase.") from server "https://mathoid.scipedia.com/localhost/v1/":): {\textstyle \varepsilon _{b}=(\frac{d_{2}}{c}-1)(0.003)}

Failed to parse (MathML with SVG or PNG fallback (recommended for modern browsers and accessibility tools): Invalid response ("Math extension cannot connect to Restbase.") from server "https://mathoid.scipedia.com/localhost/v1/":): {\textstyle d_{1}=rec+\frac{1}{2}(t)}

Failed to parse (MathML with SVG or PNG fallback (recommended for modern browsers and accessibility tools): Invalid response ("Math extension cannot connect to Restbase.") from server "https://mathoid.scipedia.com/localhost/v1/":): {\textstyle d_{2}=h-rec-\frac{1}{2}(t)}


Mientras que para los costados del perfil se tiene:

Failed to parse (MathML with SVG or PNG fallback (recommended for modern browsers and accessibility tools): Invalid response ("Math extension cannot connect to Restbase.") from server "https://mathoid.scipedia.com/localhost/v1/":): F_{R}=2\sum _{i=1}^{nElementos}E_{ac}\varepsilon (dA_{ac})
(78)
Failed to parse (MathML with SVG or PNG fallback (recommended for modern browsers and accessibility tools): Invalid response ("Math extension cannot connect to Restbase.") from server "https://mathoid.scipedia.com/localhost/v1/":): M_{R}=\sum _{i=1}^{nElementos}-2E_{ac}\varepsilon (dA_{ac})(\frac{1}{2}h-d)
(79)

Donde:

Failed to parse (MathML with SVG or PNG fallback (recommended for modern browsers and accessibility tools): Invalid response ("Math extension cannot connect to Restbase.") from server "https://mathoid.scipedia.com/localhost/v1/":): t


= Espesor del perfil

Failed to parse (MathML with SVG or PNG fallback (recommended for modern browsers and accessibility tools): Invalid response ("Math extension cannot connect to Restbase.") from server "https://mathoid.scipedia.com/localhost/v1/":): {\textstyle rec} = recubrimiento

Failed to parse (MathML with SVG or PNG fallback (recommended for modern browsers and accessibility tools): Invalid response ("Math extension cannot connect to Restbase.") from server "https://mathoid.scipedia.com/localhost/v1/":): {\textstyle h} = peralte de la sección

Failed to parse (MathML with SVG or PNG fallback (recommended for modern browsers and accessibility tools): Invalid response ("Math extension cannot connect to Restbase.") from server "https://mathoid.scipedia.com/localhost/v1/":): {\textstyle \varepsilon _{a}=(1-\frac{d}{c})(0.003)}

  • A partir de ahí se cálcula Failed to parse (MathML with SVG or PNG fallback (recommended for modern browsers and accessibility tools): Invalid response ("Math extension cannot connect to Restbase.") from server "https://mathoid.scipedia.com/localhost/v1/":): {\textstyle \varepsilon }
en función de c, cuidando únicamente la siguiente restricción Failed to parse (MathML with SVG or PNG fallback (recommended for modern browsers and accessibility tools): Invalid response ("Math extension cannot connect to Restbase.") from server "https://mathoid.scipedia.com/localhost/v1/":): {\textstyle [-0.0021<\varepsilon <0.0021]}
.

  • Y finalmente calcular la fuerza y momento resultantes resistentes:

Failed to parse (MathML with SVG or PNG fallback (recommended for modern browsers and accessibility tools): Invalid response ("Math extension cannot connect to Restbase.") from server "https://mathoid.scipedia.com/localhost/v1/":): F_{R}=F_{a}+F_{b}+2\sum _{i=1}^{nElementos}E_{ac}\varepsilon (dA_{ac})
(80)
Failed to parse (MathML with SVG or PNG fallback (recommended for modern browsers and accessibility tools): Invalid response ("Math extension cannot connect to Restbase.") from server "https://mathoid.scipedia.com/localhost/v1/":): M_{R}=F_{a}(d_{1}-\frac{1}{2}h)+F_{b}(d_{2}-\frac{1}{2}h)+\sum _{i=1}^{nElementos}-2E_{ac}\varepsilon (dA_{ac})(\frac{1}{2}h-d)
(81)

7.3.2 Cálculo de la resistencia del concreto

Se sigue la misma forma que en el modelo matemático. Sección 7.2.10

8 Columnas circulares

Análogo a la idealización del acero de refuerzo de columnas rectangulares, se ha idealizado el acero de refuerzo en éste tipo de columnas como se muestra en la siguiente figura Figura 19.

Idealización de una sección circular de concreto reforzado. Dibujo propio.
Figura 19: Idealización de una sección circular de concreto reforzado. Dibujo propio.

Donde:

Failed to parse (MathML with SVG or PNG fallback (recommended for modern browsers and accessibility tools): Invalid response ("Math extension cannot connect to Restbase.") from server "https://mathoid.scipedia.com/localhost/v1/":): t

= Espesor del perfil

Failed to parse (MathML with SVG or PNG fallback (recommended for modern browsers and accessibility tools): Invalid response ("Math extension cannot connect to Restbase.") from server "https://mathoid.scipedia.com/localhost/v1/":): rec

= recubrimiento

Failed to parse (MathML with SVG or PNG fallback (recommended for modern browsers and accessibility tools): Invalid response ("Math extension cannot connect to Restbase.") from server "https://mathoid.scipedia.com/localhost/v1/":): d_{ma}

= diámetro de la sección del elemento

Nota: El recubrimiento se mide desde el borde de la sección de la columna al centro del espesor del refuerzo ficticio.

A diferencia de la geometría rectangular, para la ciruclar resultó bastante complejo analizar la distribución de esfuerzos mediante el enfoque de análisis planteado originalmente (determinando la geometría de las configuraciones de estados de deformaciones, por lo que simplificó con el siguiente planteamiento:

8.1 Cálculo de la resistencia del acero

Lo que se hará es tratar el perfil de acero como una línea circular y subdividirla en pequeños segmentos con espesor Failed to parse (MathML with SVG or PNG fallback (recommended for modern browsers and accessibility tools): Invalid response ("Math extension cannot connect to Restbase.") from server "https://mathoid.scipedia.com/localhost/v1/":): t , Figura 20, aunque en realidad cada segmento se tratará como un punto al que le corresponderá una cierta condición de esfuerzos dependiendo de su ubicación en el plano cartesiano de referencia y del caso del cual se trate.

Esquema de análisis para las condiciones de esfuerzos en el acero de refuerzo. Dibujo propio.
Figura 20: Esquema de análisis para las condiciones de esfuerzos en el acero de refuerzo. Dibujo propio.

Donde:

Failed to parse (MathML with SVG or PNG fallback (recommended for modern browsers and accessibility tools): Invalid response ("Math extension cannot connect to Restbase.") from server "https://mathoid.scipedia.com/localhost/v1/":): dA_{ac}=dL(t)


Failed to parse (MathML with SVG or PNG fallback (recommended for modern browsers and accessibility tools): Invalid response ("Math extension cannot connect to Restbase.") from server "https://mathoid.scipedia.com/localhost/v1/":): {\textstyle L=\Pi (d_{ma}-2rec)}


Failed to parse (MathML with SVG or PNG fallback (recommended for modern browsers and accessibility tools): Invalid response ("Math extension cannot connect to Restbase.") from server "https://mathoid.scipedia.com/localhost/v1/":): {\textstyle dL=\frac{L}{n}}


Failed to parse (MathML with SVG or PNG fallback (recommended for modern browsers and accessibility tools): Invalid response ("Math extension cannot connect to Restbase.") from server "https://mathoid.scipedia.com/localhost/v1/":): {\textstyle n=}

Número de elementos

8.1.1 Metodología

Para la determinación de la resistencia de carga axial y flexión se sigue la siguiente metodología:

  • Determinar la distancia de cada segmento de perfil con respecto a la fibra más alejada de la sección transversal del elemento de concreto Failed to parse (MathML with SVG or PNG fallback (recommended for modern browsers and accessibility tools): Invalid response ("Math extension cannot connect to Restbase.") from server "https://mathoid.scipedia.com/localhost/v1/":): {\textstyle d}
.

  • A partir de ahí se cálcula Failed to parse (MathML with SVG or PNG fallback (recommended for modern browsers and accessibility tools): Invalid response ("Math extension cannot connect to Restbase.") from server "https://mathoid.scipedia.com/localhost/v1/":): {\textstyle \varepsilon }
en función de c, cuidando únicamente la siguiente restricción Failed to parse (MathML with SVG or PNG fallback (recommended for modern browsers and accessibility tools): Invalid response ("Math extension cannot connect to Restbase.") from server "https://mathoid.scipedia.com/localhost/v1/":): {\textstyle [-0.0021<\varepsilon <0.0021]}
.

  • Y finalmente calcular la fuerza y momento resultantes resistentes:

Failed to parse (MathML with SVG or PNG fallback (recommended for modern browsers and accessibility tools): Invalid response ("Math extension cannot connect to Restbase.") from server "https://mathoid.scipedia.com/localhost/v1/":): F_{R}=\sum _{i=1}^{nElementos}E_{ac}\varepsilon (dA_{ac})
(82)
Failed to parse (MathML with SVG or PNG fallback (recommended for modern browsers and accessibility tools): Invalid response ("Math extension cannot connect to Restbase.") from server "https://mathoid.scipedia.com/localhost/v1/":): M_{R}=\sum _{i=1}^{nElementos}-E_{ac}\varepsilon (dA_{ac})(\frac{1}{2}d_{ma}-d)
(83)

8.2 Casos de análisis para el concreto

A diferencia de las columnas de sección rectangular, en las circulares el diferencial de área al cambiar el eje neutro no será uniforme.

También podremos transformar ésta área de compresión en un bloque equivalente de esfuerzos, y para poder hacer ésto será necesario cálcular el centroide del área real de compresión en cada posición del eje neutro y a partir de ahí calcular el momento de flexión resistente de la sección. Figura 21.

Diagrama de distribución de esfuerzos para el concreto. Dibujo propio.
Figura 21: Diagrama de distribución de esfuerzos para el concreto. Dibujo propio.

Donde: Failed to parse (MathML with SVG or PNG fallback (recommended for modern browsers and accessibility tools): Invalid response ("Math extension cannot connect to Restbase.") from server "https://mathoid.scipedia.com/localhost/v1/":): a=\beta (c)


Failed to parse (MathML with SVG or PNG fallback (recommended for modern browsers and accessibility tools): Invalid response ("Math extension cannot connect to Restbase.") from server "https://mathoid.scipedia.com/localhost/v1/":): {\textstyle f{''}_{c}=F_{R}(0.85)f^{'}c}


Para calcular ésta fuerza de compresión tomaremos el siguiente sistema de referencia: Figura 22, para definir integrales para calcular el área efectiva de compresión del concreto en cualquier posición del eje neutro.

Sistema de referencia cartesiano para el análisis de la distribución de esfuerzos de compresión en el concreto. Dibujo propio.
Figura 22: Sistema de referencia cartesiano para el análisis de la distribución de esfuerzos de compresión en el concreto. Dibujo propio.

Subdividiremos el análisis en dos casos para simplificación:

Cuando Failed to parse (MathML with SVG or PNG fallback (recommended for modern browsers and accessibility tools): Invalid response ("Math extension cannot connect to Restbase.") from server "https://mathoid.scipedia.com/localhost/v1/":): a<\frac{1}{2}d_{ma}

Failed to parse (MathML with SVG or PNG fallback (recommended for modern browsers and accessibility tools): Invalid response ("Math extension cannot connect to Restbase.") from server "https://mathoid.scipedia.com/localhost/v1/":): F_{co}=f{''}c \int _{-z(y_{co}=a)}^{z(y_{co}=a)}(a-y_{co})\mathrm{d}z
(84)
Failed to parse (MathML with SVG or PNG fallback (recommended for modern browsers and accessibility tools): Invalid response ("Math extension cannot connect to Restbase.") from server "https://mathoid.scipedia.com/localhost/v1/":): F_{co}\cdot Y_{co}=f{''}c \int _{-z(y_{co}=a)}^{z(y_{co}=a)}(a-y_{co})...
Failed to parse (MathML with SVG or PNG fallback (recommended for modern browsers and accessibility tools): Invalid response ("Math extension cannot connect to Restbase.") from server "https://mathoid.scipedia.com/localhost/v1/":): (\frac{1}{2}d_{ma}-\frac{1}{2}(a+y_{co})))\mathrm{d}z
(85)

Cuando Failed to parse (MathML with SVG or PNG fallback (recommended for modern browsers and accessibility tools): Invalid response ("Math extension cannot connect to Restbase.") from server "https://mathoid.scipedia.com/localhost/v1/":): a>=\frac{1}{2}d_{ma}

Failed to parse (MathML with SVG or PNG fallback (recommended for modern browsers and accessibility tools): Invalid response ("Math extension cannot connect to Restbase.") from server "https://mathoid.scipedia.com/localhost/v1/":): F_{co}=f{''}c (\Pi (\frac{1}{2}d_{ma})^{2}-...
Failed to parse (MathML with SVG or PNG fallback (recommended for modern browsers and accessibility tools): Invalid response ("Math extension cannot connect to Restbase.") from server "https://mathoid.scipedia.com/localhost/v1/":): ...-\int _{-z(y_{co}=d_{ma}-a)}^{z(y_{co}=d_{ma}-a)}((d_{ma}-a)-y_{co})\mathrm{d}z)
(86)
Failed to parse (MathML with SVG or PNG fallback (recommended for modern browsers and accessibility tools): Invalid response ("Math extension cannot connect to Restbase.") from server "https://mathoid.scipedia.com/localhost/v1/":): F_{co}\cdot Y_{co}=f{''}c (-\int _{-z(y_{co}=d_{ma}-a)}^{z(y_{co}=d_{ma}-a)}((d_{ma}-...
Failed to parse (MathML with SVG or PNG fallback (recommended for modern browsers and accessibility tools): Invalid response ("Math extension cannot connect to Restbase.") from server "https://mathoid.scipedia.com/localhost/v1/":): ...-a)-y_{co})(-(\frac{1}{2}d_{ma}-...
Failed to parse (MathML with SVG or PNG fallback (recommended for modern browsers and accessibility tools): Invalid response ("Math extension cannot connect to Restbase.") from server "https://mathoid.scipedia.com/localhost/v1/":): ...-\frac{1}{2}(d_{ma}-a-y_{co}))\mathrm{d}z)
(87)

9 Geometría y propiedades mecánicas de los materiales

Recordando que el objetivo es determinar un arreglo de refuerzo tal que cumpla con un rango de eficiencia aceptable ante ciertos elementos mecánicos actuantes al que la estructura concreto estaría sometidos, manteniendo constante la geometría de las sección propuesta inicialmente. Por lo que nuestros datos de entrada serán el número de elementos a diseñar, para cada elemento se indicará la resistencia a compresión simple del concreto Failed to parse (MathML with SVG or PNG fallback (recommended for modern browsers and accessibility tools): Invalid response ("Math extension cannot connect to Restbase.") from server "https://mathoid.scipedia.com/localhost/v1/":): f{'}_{c} , la resistencia a la fluencia del acero Failed to parse (MathML with SVG or PNG fallback (recommended for modern browsers and accessibility tools): Invalid response ("Math extension cannot connect to Restbase.") from server "https://mathoid.scipedia.com/localhost/v1/":): f_{y} , y el recubrimiento Failed to parse (MathML with SVG or PNG fallback (recommended for modern browsers and accessibility tools): Invalid response ("Math extension cannot connect to Restbase.") from server "https://mathoid.scipedia.com/localhost/v1/":): rec .

El programa también necesitará las fuerzas actuantes en la columna para su diseño. Dichas fuerzas se determinan normalmente mediante un análisis estructural, el cual es común que se realice en algún software para tal fin. A partir de éste punto se determinará un valor inicial del espesor del perfil idealizado de acero Failed to parse (MathML with SVG or PNG fallback (recommended for modern browsers and accessibility tools): Invalid response ("Math extension cannot connect to Restbase.") from server "https://mathoid.scipedia.com/localhost/v1/":): t , acomodado en la secicón de concreto de tal manera que se respete el recubrimiento deseado, para así comenzar con las iteraciones de actualización de los diagramas de interacción de las columnas hasta que la condición mecánica actuante más crítica sea cubierta.

10 Cálculo de los diagramas de interacción

Se establece un cierto número de puntos para determinar los diagramas de interacción, determinado los valores Failed to parse (MathML with SVG or PNG fallback (recommended for modern browsers and accessibility tools): Invalid response ("Math extension cannot connect to Restbase.") from server "https://mathoid.scipedia.com/localhost/v1/":): P_{ot} , Failed to parse (MathML with SVG or PNG fallback (recommended for modern browsers and accessibility tools): Invalid response ("Math extension cannot connect to Restbase.") from server "https://mathoid.scipedia.com/localhost/v1/":): P_{oc}

como los límites del rango de las fuerzas del diagrama de interacción, pudiendo extraer una fuerza respectiva a cada punto del mismo que tendrá el papel de raíz en el método numérico a emplear para el cálculo de su respectivo momento resistente.

El método numérico empleado para la aproximación de ráices es el llamado Método de la Falsa posición. Anexo 3 p. actual

10.1 Cálculo de la eficiencia mecánica-estructural

Para cada condición de fuerza actuante en la columna se determinará la respectiva eficiencia estructural que hay entre ésta condición y la resistencia que el diagrama de interacción índica.

La diferencia en el cálculo de éstas eficiencias en columnas circulares y rectangulares es que en las rectangulares se deberán extraer de los diagramas de interacción calculados en el sentido de Failed to parse (MathML with SVG or PNG fallback (recommended for modern browsers and accessibility tools): Invalid response ("Math extension cannot connect to Restbase.") from server "https://mathoid.scipedia.com/localhost/v1/":): x

y Failed to parse (MathML with SVG or PNG fallback (recommended for modern browsers and accessibility tools): Invalid response ("Math extension cannot connect to Restbase.") from server "https://mathoid.scipedia.com/localhost/v1/":): y
la carga resistente y el momento resistente (Failed to parse (MathML with SVG or PNG fallback (recommended for modern browsers and accessibility tools): Invalid response ("Math extension cannot connect to Restbase.") from server "https://mathoid.scipedia.com/localhost/v1/":): M_{rx}, M_{ry}, P_{rx}, P_{ry}
 [p. actual]), y para las circulares al ser su sección simétrica respecto a cualquier eje, se calculará la eficiencia respecto a una sola dirección, extrayendo la carga resistente y el momento resistente (Failed to parse (MathML with SVG or PNG fallback (recommended for modern browsers and accessibility tools): Invalid response ("Math extension cannot connect to Restbase.") from server "https://mathoid.scipedia.com/localhost/v1/":): M_{r}, P_{r}

) del diagrama de interacción calculado.

Para lo anterior se empleará geometría analítica con el sistema cartesiano de los propios diagramas de interacción Figura 23 calculando el punto de intersección entre dos rectas imaginarias A y B, tal que A partirá del origen pasando por alguna condición de fuerza actuante prolongándose hasta el borde del diagrama de interacción, y B será tal que una el punto anterior Failed to parse (MathML with SVG or PNG fallback (recommended for modern browsers and accessibility tools): Invalid response ("Math extension cannot connect to Restbase.") from server "https://mathoid.scipedia.com/localhost/v1/":): (M_{i}, P_{i})

y posterior Failed to parse (MathML with SVG or PNG fallback (recommended for modern browsers and accessibility tools): Invalid response ("Math extension cannot connect to Restbase.") from server "https://mathoid.scipedia.com/localhost/v1/":): (M_{i+1}, P_{i+1})
del punto en el cual la recta A intersecta al diagrama de interacción.
Diagrama de interacción en el plano cartesiano de referencia para el programa.
Figura 23: Diagrama de interacción en el plano cartesiano de referencia para el programa.

De modo que el cálculo del momento resistente para una respectiva condición se cálcula como:

Failed to parse (MathML with SVG or PNG fallback (recommended for modern browsers and accessibility tools): Invalid response ("Math extension cannot connect to Restbase.") from server "https://mathoid.scipedia.com/localhost/v1/":): M_{r}=\frac{P_{i+1}+(\frac{P_{i}-P_{i+1}}{M_{i+1}-M_{i}})}{\frac{P_{u}}{M_{u}}-\frac{P_{i+1}-P_{i}}{M_{i+1}-M_{i}}}
(88)

Y su fuerza resistente respectiva como:

Failed to parse (MathML with SVG or PNG fallback (recommended for modern browsers and accessibility tools): Invalid response ("Math extension cannot connect to Restbase.") from server "https://mathoid.scipedia.com/localhost/v1/":): P_{r}=\frac{P_{u}}{M_{u}}M_{r}
(89)

Ver demostración Anexo 1. p. actual

Ahora ya se pueden aplicar las fórmulas que índican las NTC-2017 p. actual, para calcular las eficiencias de cada condición mecánica actuante.

10.2 Cálculo de área requerida de acero

Ya determinada la eficiencia mecánica estructural para cada condición de carga actuante se determinará a continuación la más crítica, y a partir de ésta se cálculará el espesor del perfil de acero simplemente iterando el valor de Failed to parse (MathML with SVG or PNG fallback (recommended for modern browsers and accessibility tools): Invalid response ("Math extension cannot connect to Restbase.") from server "https://mathoid.scipedia.com/localhost/v1/":): t

con un cierto incremento Failed to parse (MathML with SVG or PNG fallback (recommended for modern browsers and accessibility tools): Invalid response ("Math extension cannot connect to Restbase.") from server "https://mathoid.scipedia.com/localhost/v1/":): dt

, hasta llegar a un rango de eficiencia crítica requerida, establecida a priori, pues está será la eficiencia que nos servirá de comparación para seguir iterando o no. Figura [ 24]

Condición de carga crítica de diseño.
Figura 24: Condición de carga crítica de diseño.

11 Determinación del acero de refuerzo

Una vez que se ha determinado el área de acero a emplear para que se alcance la eficiencia deseada, se debe transformar esa área ficticia de acero en varillas corrugadas, distribuyéndolas uniformemente en la sección (obedeciendo las hipótesis de diseño de la Sección 6.3.2), por lo que sólo se admitirán números pares de varillas.

El programa genera un arreglo matricial de propuestas de número de varillas, desde 4 (para columnas rectangulares) o 6 (para columnas circulares), calculando para cada diámetro el número de varillas requeridas, tomando como referencia los tipos de varillas disponibles comercialmente.

El usuario podrá elegir no sólo el diámetro del acero de refuerzo, sino también la distribución de éstas en la sección (solo para las columnas rectangulares, ya que para circulares la distribución es simétrica respecto a cualquier eje de simetría), de manera que siempre se respete la separación mínima o distancia libre entre varillas Failed to parse (MathML with SVG or PNG fallback (recommended for modern browsers and accessibility tools): Invalid response ("Math extension cannot connect to Restbase.") from server "https://mathoid.scipedia.com/localhost/v1/":): S_{min}=\frac{3}{2}TMA . Aunque por defecto lo que usualmente se busca es la opción que resulte la más eficiente o la más económica. De manera que el usuario también podrá elegir que criterio es el más conveniente.

Cabe mencionar que la distribución del acero de refuerzo tiene influencia en la eficiencia mecánica de los elementos, y para cada opción de número de varillas/diámetro le corresponderá un buen número de configuraciones de éstas en las sección, por lo que el programa hará también un análisis de eficiencia de cada opción disponible, pero ahora tratando al acero de refuerzo precisamente como varillas de acero, para verificar cuáles cumplen con el rango requerido de eficiencia que se establecio a priori, una vez hecho esto, el programa seleccionará la opción más eficiente.

Tabla. 1 Tabla de tipos de varillas comerciales en México
Tipo (octavo) Failed to parse (MathML with SVG or PNG fallback (recommended for modern browsers and accessibility tools): Invalid response ("Math extension cannot connect to Restbase.") from server "https://mathoid.scipedia.com/localhost/v1/":): diam(pulg) Failed to parse (MathML with SVG or PNG fallback (recommended for modern browsers and accessibility tools): Invalid response ("Math extension cannot connect to Restbase.") from server "https://mathoid.scipedia.com/localhost/v1/":): diam(cm) áreaFailed to parse (MathML with SVG or PNG fallback (recommended for modern browsers and accessibility tools): Invalid response ("Math extension cannot connect to Restbase.") from server "https://mathoid.scipedia.com/localhost/v1/":): (cm^{2}
Failed to parse (MathML with SVG or PNG fallback (recommended for modern browsers and accessibility tools): Invalid response ("Math extension cannot connect to Restbase.") from server "https://mathoid.scipedia.com/localhost/v1/":): \# 3

Failed to parse (MathML with SVG or PNG fallback (recommended for modern browsers and accessibility tools): Invalid response ("Math extension cannot connect to Restbase.") from server "https://mathoid.scipedia.com/localhost/v1/":): 0.375

Failed to parse (MathML with SVG or PNG fallback (recommended for modern browsers and accessibility tools): Invalid response ("Math extension cannot connect to Restbase.") from server "https://mathoid.scipedia.com/localhost/v1/":): 0.9525

Failed to parse (MathML with SVG or PNG fallback (recommended for modern browsers and accessibility tools): Invalid response ("Math extension cannot connect to Restbase.") from server "https://mathoid.scipedia.com/localhost/v1/":): 0.7126

Failed to parse (MathML with SVG or PNG fallback (recommended for modern browsers and accessibility tools): Invalid response ("Math extension cannot connect to Restbase.") from server "https://mathoid.scipedia.com/localhost/v1/":): \# 4

Failed to parse (MathML with SVG or PNG fallback (recommended for modern browsers and accessibility tools): Invalid response ("Math extension cannot connect to Restbase.") from server "https://mathoid.scipedia.com/localhost/v1/":): 0.5

Failed to parse (MathML with SVG or PNG fallback (recommended for modern browsers and accessibility tools): Invalid response ("Math extension cannot connect to Restbase.") from server "https://mathoid.scipedia.com/localhost/v1/":): 1.27

Failed to parse (MathML with SVG or PNG fallback (recommended for modern browsers and accessibility tools): Invalid response ("Math extension cannot connect to Restbase.") from server "https://mathoid.scipedia.com/localhost/v1/":): 1.2668

Failed to parse (MathML with SVG or PNG fallback (recommended for modern browsers and accessibility tools): Invalid response ("Math extension cannot connect to Restbase.") from server "https://mathoid.scipedia.com/localhost/v1/":): \# 5

Failed to parse (MathML with SVG or PNG fallback (recommended for modern browsers and accessibility tools): Invalid response ("Math extension cannot connect to Restbase.") from server "https://mathoid.scipedia.com/localhost/v1/":): 0.625

Failed to parse (MathML with SVG or PNG fallback (recommended for modern browsers and accessibility tools): Invalid response ("Math extension cannot connect to Restbase.") from server "https://mathoid.scipedia.com/localhost/v1/":): 1.5875

Failed to parse (MathML with SVG or PNG fallback (recommended for modern browsers and accessibility tools): Invalid response ("Math extension cannot connect to Restbase.") from server "https://mathoid.scipedia.com/localhost/v1/":): 1.9793

Failed to parse (MathML with SVG or PNG fallback (recommended for modern browsers and accessibility tools): Invalid response ("Math extension cannot connect to Restbase.") from server "https://mathoid.scipedia.com/localhost/v1/":): \# 6

Failed to parse (MathML with SVG or PNG fallback (recommended for modern browsers and accessibility tools): Invalid response ("Math extension cannot connect to Restbase.") from server "https://mathoid.scipedia.com/localhost/v1/":): 0.75

Failed to parse (MathML with SVG or PNG fallback (recommended for modern browsers and accessibility tools): Invalid response ("Math extension cannot connect to Restbase.") from server "https://mathoid.scipedia.com/localhost/v1/":): 1.905

Failed to parse (MathML with SVG or PNG fallback (recommended for modern browsers and accessibility tools): Invalid response ("Math extension cannot connect to Restbase.") from server "https://mathoid.scipedia.com/localhost/v1/":): 2.8502

Failed to parse (MathML with SVG or PNG fallback (recommended for modern browsers and accessibility tools): Invalid response ("Math extension cannot connect to Restbase.") from server "https://mathoid.scipedia.com/localhost/v1/":): \# 8

Failed to parse (MathML with SVG or PNG fallback (recommended for modern browsers and accessibility tools): Invalid response ("Math extension cannot connect to Restbase.") from server "https://mathoid.scipedia.com/localhost/v1/":): 1.0

Failed to parse (MathML with SVG or PNG fallback (recommended for modern browsers and accessibility tools): Invalid response ("Math extension cannot connect to Restbase.") from server "https://mathoid.scipedia.com/localhost/v1/":): 2.54

Failed to parse (MathML with SVG or PNG fallback (recommended for modern browsers and accessibility tools): Invalid response ("Math extension cannot connect to Restbase.") from server "https://mathoid.scipedia.com/localhost/v1/":): 5.067

Failed to parse (MathML with SVG or PNG fallback (recommended for modern browsers and accessibility tools): Invalid response ("Math extension cannot connect to Restbase.") from server "https://mathoid.scipedia.com/localhost/v1/":): \# 9

Failed to parse (MathML with SVG or PNG fallback (recommended for modern browsers and accessibility tools): Invalid response ("Math extension cannot connect to Restbase.") from server "https://mathoid.scipedia.com/localhost/v1/":): 1.125

Failed to parse (MathML with SVG or PNG fallback (recommended for modern browsers and accessibility tools): Invalid response ("Math extension cannot connect to Restbase.") from server "https://mathoid.scipedia.com/localhost/v1/":): 2.8575

Failed to parse (MathML with SVG or PNG fallback (recommended for modern browsers and accessibility tools): Invalid response ("Math extension cannot connect to Restbase.") from server "https://mathoid.scipedia.com/localhost/v1/":): 6.413

Failed to parse (MathML with SVG or PNG fallback (recommended for modern browsers and accessibility tools): Invalid response ("Math extension cannot connect to Restbase.") from server "https://mathoid.scipedia.com/localhost/v1/":): \# 10

Failed to parse (MathML with SVG or PNG fallback (recommended for modern browsers and accessibility tools): Invalid response ("Math extension cannot connect to Restbase.") from server "https://mathoid.scipedia.com/localhost/v1/":): 1.25

Failed to parse (MathML with SVG or PNG fallback (recommended for modern browsers and accessibility tools): Invalid response ("Math extension cannot connect to Restbase.") from server "https://mathoid.scipedia.com/localhost/v1/":): 3.175

Failed to parse (MathML with SVG or PNG fallback (recommended for modern browsers and accessibility tools): Invalid response ("Math extension cannot connect to Restbase.") from server "https://mathoid.scipedia.com/localhost/v1/":): 7.917

Failed to parse (MathML with SVG or PNG fallback (recommended for modern browsers and accessibility tools): Invalid response ("Math extension cannot connect to Restbase.") from server "https://mathoid.scipedia.com/localhost/v1/":): \# 12

Failed to parse (MathML with SVG or PNG fallback (recommended for modern browsers and accessibility tools): Invalid response ("Math extension cannot connect to Restbase.") from server "https://mathoid.scipedia.com/localhost/v1/":): 1.5

Failed to parse (MathML with SVG or PNG fallback (recommended for modern browsers and accessibility tools): Invalid response ("Math extension cannot connect to Restbase.") from server "https://mathoid.scipedia.com/localhost/v1/":): 3.81

Failed to parse (MathML with SVG or PNG fallback (recommended for modern browsers and accessibility tools): Invalid response ("Math extension cannot connect to Restbase.") from server "https://mathoid.scipedia.com/localhost/v1/":): 11.400

12 Diseño de experimento

Para cada tipo de geometría se probó un modelo estructural de experimentación con diferentes valores de Failed to parse (MathML with SVG or PNG fallback (recommended for modern browsers and accessibility tools): Invalid response ("Math extension cannot connect to Restbase.") from server "https://mathoid.scipedia.com/localhost/v1/":): f'{c} .

12.1 Columnas rectangulares

En un análisis estructural hecho previamente se proponen las siguientes geometrías y Failed to parse (MathML with SVG or PNG fallback (recommended for modern browsers and accessibility tools): Invalid response ("Math extension cannot connect to Restbase.") from server "https://mathoid.scipedia.com/localhost/v1/":): f'{c}

12.1.1 Datos de entrada

Tabla. 2 Datos de entrada para el diseño de acero de refuerzo en columnas rectangulares
Failed to parse (MathML with SVG or PNG fallback (recommended for modern browsers and accessibility tools): Invalid response ("Math extension cannot connect to Restbase.") from server "https://mathoid.scipedia.com/localhost/v1/":): b(cm) Failed to parse (MathML with SVG or PNG fallback (recommended for modern browsers and accessibility tools): Invalid response ("Math extension cannot connect to Restbase.") from server "https://mathoid.scipedia.com/localhost/v1/":): h(cm) Failed to parse (MathML with SVG or PNG fallback (recommended for modern browsers and accessibility tools): Invalid response ("Math extension cannot connect to Restbase.") from server "https://mathoid.scipedia.com/localhost/v1/":): rec(cm) Failed to parse (MathML with SVG or PNG fallback (recommended for modern browsers and accessibility tools): Invalid response ("Math extension cannot connect to Restbase.") from server "https://mathoid.scipedia.com/localhost/v1/":): f'{c}(cm^{2}
Failed to parse (MathML with SVG or PNG fallback (recommended for modern browsers and accessibility tools): Invalid response ("Math extension cannot connect to Restbase.") from server "https://mathoid.scipedia.com/localhost/v1/":): 40

Failed to parse (MathML with SVG or PNG fallback (recommended for modern browsers and accessibility tools): Invalid response ("Math extension cannot connect to Restbase.") from server "https://mathoid.scipedia.com/localhost/v1/":): 75

Failed to parse (MathML with SVG or PNG fallback (recommended for modern browsers and accessibility tools): Invalid response ("Math extension cannot connect to Restbase.") from server "https://mathoid.scipedia.com/localhost/v1/":): 5

Failed to parse (MathML with SVG or PNG fallback (recommended for modern browsers and accessibility tools): Invalid response ("Math extension cannot connect to Restbase.") from server "https://mathoid.scipedia.com/localhost/v1/":): 280

Failed to parse (MathML with SVG or PNG fallback (recommended for modern browsers and accessibility tools): Invalid response ("Math extension cannot connect to Restbase.") from server "https://mathoid.scipedia.com/localhost/v1/":): 50

Failed to parse (MathML with SVG or PNG fallback (recommended for modern browsers and accessibility tools): Invalid response ("Math extension cannot connect to Restbase.") from server "https://mathoid.scipedia.com/localhost/v1/":): 50

Failed to parse (MathML with SVG or PNG fallback (recommended for modern browsers and accessibility tools): Invalid response ("Math extension cannot connect to Restbase.") from server "https://mathoid.scipedia.com/localhost/v1/":): 5

Failed to parse (MathML with SVG or PNG fallback (recommended for modern browsers and accessibility tools): Invalid response ("Math extension cannot connect to Restbase.") from server "https://mathoid.scipedia.com/localhost/v1/":): 300

Con las siguientes combinaciones de carga para ambas estructuras:


Tabla. 3 Combinaciones de carga resultantes de un análisis estructural previo para ambos modelos estructurales.
Failed to parse (MathML with SVG or PNG fallback (recommended for modern browsers and accessibility tools): Invalid response ("Math extension cannot connect to Restbase.") from server "https://mathoid.scipedia.com/localhost/v1/":): P(Ton) Failed to parse (MathML with SVG or PNG fallback (recommended for modern browsers and accessibility tools): Invalid response ("Math extension cannot connect to Restbase.") from server "https://mathoid.scipedia.com/localhost/v1/":): M_{x}(Ton-m) Failed to parse (MathML with SVG or PNG fallback (recommended for modern browsers and accessibility tools): Invalid response ("Math extension cannot connect to Restbase.") from server "https://mathoid.scipedia.com/localhost/v1/":): M_{y}(Ton-m)
Failed to parse (MathML with SVG or PNG fallback (recommended for modern browsers and accessibility tools): Invalid response ("Math extension cannot connect to Restbase.") from server "https://mathoid.scipedia.com/localhost/v1/":): -35

Failed to parse (MathML with SVG or PNG fallback (recommended for modern browsers and accessibility tools): Invalid response ("Math extension cannot connect to Restbase.") from server "https://mathoid.scipedia.com/localhost/v1/":): 22

Failed to parse (MathML with SVG or PNG fallback (recommended for modern browsers and accessibility tools): Invalid response ("Math extension cannot connect to Restbase.") from server "https://mathoid.scipedia.com/localhost/v1/":): 45

Failed to parse (MathML with SVG or PNG fallback (recommended for modern browsers and accessibility tools): Invalid response ("Math extension cannot connect to Restbase.") from server "https://mathoid.scipedia.com/localhost/v1/":): 36

Failed to parse (MathML with SVG or PNG fallback (recommended for modern browsers and accessibility tools): Invalid response ("Math extension cannot connect to Restbase.") from server "https://mathoid.scipedia.com/localhost/v1/":): 25

Failed to parse (MathML with SVG or PNG fallback (recommended for modern browsers and accessibility tools): Invalid response ("Math extension cannot connect to Restbase.") from server "https://mathoid.scipedia.com/localhost/v1/":): 32

Failed to parse (MathML with SVG or PNG fallback (recommended for modern browsers and accessibility tools): Invalid response ("Math extension cannot connect to Restbase.") from server "https://mathoid.scipedia.com/localhost/v1/":): -304

Failed to parse (MathML with SVG or PNG fallback (recommended for modern browsers and accessibility tools): Invalid response ("Math extension cannot connect to Restbase.") from server "https://mathoid.scipedia.com/localhost/v1/":): 19

Failed to parse (MathML with SVG or PNG fallback (recommended for modern browsers and accessibility tools): Invalid response ("Math extension cannot connect to Restbase.") from server "https://mathoid.scipedia.com/localhost/v1/":): 65

Failed to parse (MathML with SVG or PNG fallback (recommended for modern browsers and accessibility tools): Invalid response ("Math extension cannot connect to Restbase.") from server "https://mathoid.scipedia.com/localhost/v1/":): -46

Failed to parse (MathML with SVG or PNG fallback (recommended for modern browsers and accessibility tools): Invalid response ("Math extension cannot connect to Restbase.") from server "https://mathoid.scipedia.com/localhost/v1/":): 12

Failed to parse (MathML with SVG or PNG fallback (recommended for modern browsers and accessibility tools): Invalid response ("Math extension cannot connect to Restbase.") from server "https://mathoid.scipedia.com/localhost/v1/":): 75

Failed to parse (MathML with SVG or PNG fallback (recommended for modern browsers and accessibility tools): Invalid response ("Math extension cannot connect to Restbase.") from server "https://mathoid.scipedia.com/localhost/v1/":): -187

Failed to parse (MathML with SVG or PNG fallback (recommended for modern browsers and accessibility tools): Invalid response ("Math extension cannot connect to Restbase.") from server "https://mathoid.scipedia.com/localhost/v1/":): 10

Failed to parse (MathML with SVG or PNG fallback (recommended for modern browsers and accessibility tools): Invalid response ("Math extension cannot connect to Restbase.") from server "https://mathoid.scipedia.com/localhost/v1/":): 45

12.1.2 Resultados

Una vez hecho el análisis de resistencia con las cargas y datos dados se obtienen los siguientes diagramas de interacción, tabla de eficiencias estructurales para cada modelo estructural con los grosores resultantes del perfil idealizado de acero, distribución óptima en costo y eficiencia de varillas de acero en cada modelo estructural y sus respectivas tablas de eficiencia con dicha opción de varillado:

Eficiencia estructural con espesores de perfiles idealizados de acero resultantes:

Tabla de eficiencias con espesor de perfil (t) resultante-Modelo estructural 01.
Figura 25: Tabla de eficiencias con espesor de perfil (t) resultante-Modelo estructural 01.
Tabla de eficiencias con espesor de perfil (t) resultante-Modelo estructural 02.
Figura 26: Tabla de eficiencias con espesor de perfil (t) resultante-Modelo estructural 02.

Diagramas de interacción con espesor de perfil (t) resultante para cada modelo:

Nota: Los puntos rojos representan las condiciones de carga en ese sentido.
Diagrama de interacción en X con espesor de perfil (t) resultante-Modelo estructural 01.
Figura 27: Diagrama de interacción en X con espesor de perfil (t) resultante-Modelo estructural 01.
Diagrama de interacción en Y con espesor de perfil (t) resultante-Modelo estructural 01.
Figura 28: Diagrama de interacción en Y con espesor de perfil (t) resultante-Modelo estructural 01.
Diagrama de interacción en X con espesor de perfil (t) resultante-Modelo estructural 02.
Figura 29: Diagrama de interacción en X con espesor de perfil (t) resultante-Modelo estructural 02.
Diagrama de interacción en Y con espesor de perfil (t) resultante-Modelo estructural 02.
Figura 30: Diagrama de interacción en Y con espesor de perfil (t) resultante-Modelo estructural 02.

Opciones de distribución de varillas disponibles resultantes:

Tabla de opciones disponibles de varillado-Modelo 01.
Figura 31: Tabla de opciones disponibles de varillado-Modelo 01.
Tabla de opciones disponibles de varillado-Modelo 02.
Figura 32: Tabla de opciones disponibles de varillado-Modelo 02.

Distribución de varillado óptima en costo y eficiencia

Distribución de opción óptima de varillado en costo y eficiencia estructural correspondiente a la opción 3 Tabla 31-Modelo 01
Figura 33: Distribución de opción óptima de varillado en costo y eficiencia estructural correspondiente a la opción 3 Tabla 31-Modelo 01
Distribución de opción óptima de varillado en costo y eficiencia estructural correspondiente a la opción 1 Tabla 32-Modelo 02
Figura 34: Distribución de opción óptima de varillado en costo y eficiencia estructural correspondiente a la opción 1 Tabla 32-Modelo 02

Tomando como referencia las distribuciones de varillas en la sección para cada modelo con las tablas de opciones disponibles de varillado, se puede notar que el programa al tomar la opción más económica, hace la selección tomando en cuenta también la mejor eficiencia estructural, que aunque no es la más eficiente de manera absoluta, si lo es con respecto al costo más bajo, ya que se pueden presentar mismos costos óptimos con diferentes eficiencias estrucrales.

Diagramas de interacción para las opciones de varillado óptimas en costo para cada modelo estructural:

Diagrama de interacción en X con varillas resultantes-Modelo estructural 01.
Figura 35: Diagrama de interacción en X con varillas resultantes-Modelo estructural 01.
Diagrama de interacción en Y con varillas resultantes-Modelo estructural 01.
Figura 36: Diagrama de interacción en Y con varillas resultantes-Modelo estructural 01.
Diagrama de interacción en X con varillas resultantes-Modelo estructural 02.
Figura 37: Diagrama de interacción en X con varillas resultantes-Modelo estructural 02.
Diagrama de interacción en X con varillas resultantes-Modelo estructural 02.
Figura 38: Diagrama de interacción en X con varillas resultantes-Modelo estructural 02.

12.2 Columnas circulares

12.2.1 Datos de entrada

Tabla. 4 Datos de entrada para el diseño de acero de refuerzo en columnas circulares
Failed to parse (MathML with SVG or PNG fallback (recommended for modern browsers and accessibility tools): Invalid response ("Math extension cannot connect to Restbase.") from server "https://mathoid.scipedia.com/localhost/v1/":): D(cm) Failed to parse (MathML with SVG or PNG fallback (recommended for modern browsers and accessibility tools): Invalid response ("Math extension cannot connect to Restbase.") from server "https://mathoid.scipedia.com/localhost/v1/":): rec(cm) Failed to parse (MathML with SVG or PNG fallback (recommended for modern browsers and accessibility tools): Invalid response ("Math extension cannot connect to Restbase.") from server "https://mathoid.scipedia.com/localhost/v1/":): f'{c}(cm^{2}
Failed to parse (MathML with SVG or PNG fallback (recommended for modern browsers and accessibility tools): Invalid response ("Math extension cannot connect to Restbase.") from server "https://mathoid.scipedia.com/localhost/v1/":): 40

Failed to parse (MathML with SVG or PNG fallback (recommended for modern browsers and accessibility tools): Invalid response ("Math extension cannot connect to Restbase.") from server "https://mathoid.scipedia.com/localhost/v1/":): 5

Failed to parse (MathML with SVG or PNG fallback (recommended for modern browsers and accessibility tools): Invalid response ("Math extension cannot connect to Restbase.") from server "https://mathoid.scipedia.com/localhost/v1/":): 300

Failed to parse (MathML with SVG or PNG fallback (recommended for modern browsers and accessibility tools): Invalid response ("Math extension cannot connect to Restbase.") from server "https://mathoid.scipedia.com/localhost/v1/":): 50

Failed to parse (MathML with SVG or PNG fallback (recommended for modern browsers and accessibility tools): Invalid response ("Math extension cannot connect to Restbase.") from server "https://mathoid.scipedia.com/localhost/v1/":): 5

Failed to parse (MathML with SVG or PNG fallback (recommended for modern browsers and accessibility tools): Invalid response ("Math extension cannot connect to Restbase.") from server "https://mathoid.scipedia.com/localhost/v1/":): 300

Con las siguientes combinaciones de carga para ambas estructuras:


Tabla. 5 Combinaciones de carga resultantes de un análisis estructural previo para ambos modelos estructurales.
Failed to parse (MathML with SVG or PNG fallback (recommended for modern browsers and accessibility tools): Invalid response ("Math extension cannot connect to Restbase.") from server "https://mathoid.scipedia.com/localhost/v1/":): P(Ton) Failed to parse (MathML with SVG or PNG fallback (recommended for modern browsers and accessibility tools): Invalid response ("Math extension cannot connect to Restbase.") from server "https://mathoid.scipedia.com/localhost/v1/":): M_{x}(Ton-m)
Failed to parse (MathML with SVG or PNG fallback (recommended for modern browsers and accessibility tools): Invalid response ("Math extension cannot connect to Restbase.") from server "https://mathoid.scipedia.com/localhost/v1/":): -35

Failed to parse (MathML with SVG or PNG fallback (recommended for modern browsers and accessibility tools): Invalid response ("Math extension cannot connect to Restbase.") from server "https://mathoid.scipedia.com/localhost/v1/":): 22

Failed to parse (MathML with SVG or PNG fallback (recommended for modern browsers and accessibility tools): Invalid response ("Math extension cannot connect to Restbase.") from server "https://mathoid.scipedia.com/localhost/v1/":): 36

Failed to parse (MathML with SVG or PNG fallback (recommended for modern browsers and accessibility tools): Invalid response ("Math extension cannot connect to Restbase.") from server "https://mathoid.scipedia.com/localhost/v1/":): 25

Failed to parse (MathML with SVG or PNG fallback (recommended for modern browsers and accessibility tools): Invalid response ("Math extension cannot connect to Restbase.") from server "https://mathoid.scipedia.com/localhost/v1/":): -304

Failed to parse (MathML with SVG or PNG fallback (recommended for modern browsers and accessibility tools): Invalid response ("Math extension cannot connect to Restbase.") from server "https://mathoid.scipedia.com/localhost/v1/":): 19

Failed to parse (MathML with SVG or PNG fallback (recommended for modern browsers and accessibility tools): Invalid response ("Math extension cannot connect to Restbase.") from server "https://mathoid.scipedia.com/localhost/v1/":): -46

Failed to parse (MathML with SVG or PNG fallback (recommended for modern browsers and accessibility tools): Invalid response ("Math extension cannot connect to Restbase.") from server "https://mathoid.scipedia.com/localhost/v1/":): 12

Failed to parse (MathML with SVG or PNG fallback (recommended for modern browsers and accessibility tools): Invalid response ("Math extension cannot connect to Restbase.") from server "https://mathoid.scipedia.com/localhost/v1/":): -187

Failed to parse (MathML with SVG or PNG fallback (recommended for modern browsers and accessibility tools): Invalid response ("Math extension cannot connect to Restbase.") from server "https://mathoid.scipedia.com/localhost/v1/":): 10

12.2.2 Resultados

Una vez hecho el análisis de resistencia con las cargas y datos dados se obtienen los siguientes diagramas de interacción, tabla de eficiencias estructurales para cada modelo estructural con los grosores resultantes del perfil idealizado de acero, distribución óptima en costo y eficiencia de varillas de acero en cada modelo estructural y sus respectivas tablas de eficiencia con dicha opción de varillado:

Eficiencia estructural con espesores de perfiles idealizados de acero resultantes:

Tabla de eficiencias con espesor de perfil (t) resultante-Modelo estructural 01.
Figura 39: Tabla de eficiencias con espesor de perfil (t) resultante-Modelo estructural 01.
Tabla de eficiencias con espesor de perfil (t) resultante-Modelo estructural 02.
Figura 40: Tabla de eficiencias con espesor de perfil (t) resultante-Modelo estructural 02.

Diagramas de interacción con espesor de perfil (t) resultante para cada modelo:

Diagrama de interacción con espesor de perfil (t) resultante-Modelo estructural 01.
Figura 41: Diagrama de interacción con espesor de perfil (t) resultante-Modelo estructural 01.
Diagrama de interacción con espesor de perfil (t) resultante-Modelo estructural 02.
Figura 42: Diagrama de interacción con espesor de perfil (t) resultante-Modelo estructural 02.

Opciones de distribución de varillas disponibles resultantes:

Tabla de opciones disponibles de varillado-Modelo 01.
Figura 43: Tabla de opciones disponibles de varillado-Modelo 01.
Tabla de opciones disponibles de varillado-Modelo 02.
Figura 44: Tabla de opciones disponibles de varillado-Modelo 02.

Distribución de varillado óptima en costo y eficiencia

Distribución de opción óptima de varillado en costo y eficiencia estructural correspondiente a la opción 2 Tabla 43-Modelo 01
Figura 45: Distribución de opción óptima de varillado en costo y eficiencia estructural correspondiente a la opción 2 Tabla 43-Modelo 01
Distribución de opción óptima de varillado en costo y eficiencia estructural correspondiente a la opción 1 Tabla 44-Modelo 02
Figura 46: Distribución de opción óptima de varillado en costo y eficiencia estructural correspondiente a la opción 1 Tabla 44-Modelo 02

Diagramas de interacción para las opciones de varillado óptimas en costo para cada modelo estructural:

Diagrama de interacción con varillas resultantes-Modelo estructural 01.
Figura 47: Diagrama de interacción con varillas resultantes-Modelo estructural 01.
Diagrama de interacción con varillas resultantes-Modelo estructural 02.
Figura 48: Diagrama de interacción con varillas resultantes-Modelo estructural 02.

13 Discusión y conclusiones

El método aparte de ser muy fácil de programar en una computadora ofrece una nueva forma para analizar y diseñar estructuras de concreto reforzado. Sin duda que aún queda mucho por desarrollar y este puede ser el comienzo de nuevas investigaciones en material de optimización de estrucruras de concreto, ya que como tal este método también se implementó en el presente trabajo para optimización, aunque con un método muy sencillo de búsqueda, más sin embargo los resultados obtenidos son los óptimos de acuerdo a los requerimientos de diseño.

14 Agradecimientos

Agradezco a la Universidad de Guanajuato, mi casa de estudios, por esta oportunidad, así como especial agradecimiento al Aula CIMNE-UG, que representó para mi un espacio de ideas y centro de exploración organizacional. A mi director de tesis el Dr. Alejandro Hernández Martínez y a mi tutor proyectos en el Aula CIMNE a la cual también dicho trabajo forma parte, el MC. Humberto Esqueda Oliva, pues en el Aula CIMNE-UG se desarrolló el programa computacional como tal en lenguaje C principalmente con MatLab para las gráficas, y python para la parametrización visual de los diseños, tanto para los elementos de concreto como para el acero de refuerzo.

15 Anexo 1. Demostraciones de las variables envueltas en los casos de análisis de columnas rectangulares

Caso 1

Demostración 1.1 para el caso 1 de columnas rectangulares.Dibujo propio.
Figura 49: Demostración 1.1 para el caso 1 de columnas rectangulares.Dibujo propio.

Por relación de triángulos:

Failed to parse (MathML with SVG or PNG fallback (recommended for modern browsers and accessibility tools): Invalid response ("Math extension cannot connect to Restbase.") from server "https://mathoid.scipedia.com/localhost/v1/":): \frac{0.003}{d}=\frac{0.0051}{d_{1}}


Failed to parse (MathML with SVG or PNG fallback (recommended for modern browsers and accessibility tools): Invalid response ("Math extension cannot connect to Restbase.") from server "https://mathoid.scipedia.com/localhost/v1/":): d=\frac{30}{51}d_{1}


Caso 2

Demostración 2.1 para el Caso 2 de columnas rectangulares
Figura 50: Demostración 2.1 para el Caso 2 de columnas rectangulares

Failed to parse (MathML with SVG or PNG fallback (recommended for modern browsers and accessibility tools): Invalid response ("Math extension cannot connect to Restbase.") from server "https://mathoid.scipedia.com/localhost/v1/":): s=h_{3}+c-d_{1}


Por relación de triángulos:

Failed to parse (MathML with SVG or PNG fallback (recommended for modern browsers and accessibility tools): Invalid response ("Math extension cannot connect to Restbase.") from server "https://mathoid.scipedia.com/localhost/v1/":): \frac{\varepsilon }{h_{3}-s}=\frac{0.003}{c}


Entonces:

Failed to parse (MathML with SVG or PNG fallback (recommended for modern browsers and accessibility tools): Invalid response ("Math extension cannot connect to Restbase.") from server "https://mathoid.scipedia.com/localhost/v1/":): \varepsilon =\frac{0.003}{c}(h_{3}-(h_{3}+c-d_{1}))


Failed to parse (MathML with SVG or PNG fallback (recommended for modern browsers and accessibility tools): Invalid response ("Math extension cannot connect to Restbase.") from server "https://mathoid.scipedia.com/localhost/v1/":): \varepsilon=0.003(\frac{d_{1}}{c}-1)


Caso 3

Demostración 3.1 para el Caso 3 de columnas rectangulares
Figura 51: Demostración 3.1 para el Caso 3 de columnas rectangulares

Por relación de triángulos:

Failed to parse (MathML with SVG or PNG fallback (recommended for modern browsers and accessibility tools): Invalid response ("Math extension cannot connect to Restbase.") from server "https://mathoid.scipedia.com/localhost/v1/":): \frac{c}{0.003}=\frac{d_{1}}{0.003-0.0021}


Entonces:

Failed to parse (MathML with SVG or PNG fallback (recommended for modern browsers and accessibility tools): Invalid response ("Math extension cannot connect to Restbase.") from server "https://mathoid.scipedia.com/localhost/v1/":): c=\frac{30}{9}d_{1}


Caso especial

Sea Failed to parse (MathML with SVG or PNG fallback (recommended for modern browsers and accessibility tools): Invalid response ("Math extension cannot connect to Restbase.") from server "https://mathoid.scipedia.com/localhost/v1/":): m_{max}

la razón de distribución líneal de esfuerzos para el limite máximo del caso especial, y Failed to parse (MathML with SVG or PNG fallback (recommended for modern browsers and accessibility tools): Invalid response ("Math extension cannot connect to Restbase.") from server "https://mathoid.scipedia.com/localhost/v1/":): m_{min}
la razón de distribución líneal de esfuerzos para el límite mínimo: Failed to parse (MathML with SVG or PNG fallback (recommended for modern browsers and accessibility tools): Invalid response ("Math extension cannot connect to Restbase.") from server "https://mathoid.scipedia.com/localhost/v1/":): m_{max}=\frac{d_{1}}{0.003-0.0021}


Failed to parse (MathML with SVG or PNG fallback (recommended for modern browsers and accessibility tools): Invalid response ("Math extension cannot connect to Restbase.") from server "https://mathoid.scipedia.com/localhost/v1/":): m_{min}=\frac{d_{2}}{0.003+0.0021}

Demostración CE.1 para el Caso Especial de columnas rectangulares
Figura 52: Demostración CE.1 para el Caso Especial de columnas rectangulares

De modo que se deberá cumplir la siguiente relación:

Failed to parse (MathML with SVG or PNG fallback (recommended for modern browsers and accessibility tools): Invalid response ("Math extension cannot connect to Restbase.") from server "https://mathoid.scipedia.com/localhost/v1/":): \frac{d_{2}}{0.0051}<=\frac{d_{1}}{0.0009}


Failed to parse (MathML with SVG or PNG fallback (recommended for modern browsers and accessibility tools): Invalid response ("Math extension cannot connect to Restbase.") from server "https://mathoid.scipedia.com/localhost/v1/":): \frac{9}{51}d_{2}<=d_{1}

   Luego: Failed to parse (MathML with SVG or PNG fallback (recommended for modern browsers and accessibility tools): Invalid response ("Math extension cannot connect to Restbase.") from server "https://mathoid.scipedia.com/localhost/v1/":): \frac{9}{51}(h-rec-\frac{1}{2}t<=rec+\frac{1}{2}t)
  Y simplificando, se tiene:

Failed to parse (MathML with SVG or PNG fallback (recommended for modern browsers and accessibility tools): Invalid response ("Math extension cannot connect to Restbase.") from server "https://mathoid.scipedia.com/localhost/v1/":): \frac{60}{102}t>=\frac{9}{51}h-\frac{60}{51}rec


Y ahora, por relaciones trigonométricas

Failed to parse (MathML with SVG or PNG fallback (recommended for modern browsers and accessibility tools): Invalid response ("Math extension cannot connect to Restbase.") from server "https://mathoid.scipedia.com/localhost/v1/":): \frac{c-d_{1}}{\varepsilon _{1}}=\frac{c}{0.003}


Failed to parse (MathML with SVG or PNG fallback (recommended for modern browsers and accessibility tools): Invalid response ("Math extension cannot connect to Restbase.") from server "https://mathoid.scipedia.com/localhost/v1/":): \varepsilon _{1}=0.003(1-\frac{d_{1}}{c})


Y además:

Failed to parse (MathML with SVG or PNG fallback (recommended for modern browsers and accessibility tools): Invalid response ("Math extension cannot connect to Restbase.") from server "https://mathoid.scipedia.com/localhost/v1/":): \frac{0.003}{c}=\frac{\varepsilon _{2}}{d_{2}-c}


Failed to parse (MathML with SVG or PNG fallback (recommended for modern browsers and accessibility tools): Invalid response ("Math extension cannot connect to Restbase.") from server "https://mathoid.scipedia.com/localhost/v1/":): \varepsilon _{2}=0.003(\frac{d_{2}}{c}-1)


Caso 4

Demostración 4.1 del Caso 4.
Figura 53: Demostración 4.1 del Caso 4.

Por relaciones trigonométricas:

Failed to parse (MathML with SVG or PNG fallback (recommended for modern browsers and accessibility tools): Invalid response ("Math extension cannot connect to Restbase.") from server "https://mathoid.scipedia.com/localhost/v1/":): \frac{h_{4}+d_{1}}{0.003-0.0021}=\frac{c}{0.003}


Por lo tanto:

Failed to parse (MathML with SVG or PNG fallback (recommended for modern browsers and accessibility tools): Invalid response ("Math extension cannot connect to Restbase.") from server "https://mathoid.scipedia.com/localhost/v1/":): h_{4}=(1-\frac{21}{30}-\frac{d_{1}}{c})c


O también:

Failed to parse (MathML with SVG or PNG fallback (recommended for modern browsers and accessibility tools): Invalid response ("Math extension cannot connect to Restbase.") from server "https://mathoid.scipedia.com/localhost/v1/":): h_{4}=(1-\frac{21}{30}-\frac{d_{1}}{c})c


Caso 5

Demostración 5.1 para el Caso 5.
Figura 54: Demostración 5.1 para el Caso 5.

Por relaciones trigonométricas:

Failed to parse (MathML with SVG or PNG fallback (recommended for modern browsers and accessibility tools): Invalid response ("Math extension cannot connect to Restbase.") from server "https://mathoid.scipedia.com/localhost/v1/":): \frac{0.003}{c}=\frac{0.0009}{h_{5}}


Caso 6

Demostración 6.1 para el Caso 6
Figura 55: Demostración 6.1 para el Caso 6

Por relaciones trigonométricas:

Failed to parse (MathML with SVG or PNG fallback (recommended for modern browsers and accessibility tools): Invalid response ("Math extension cannot connect to Restbase.") from server "https://mathoid.scipedia.com/localhost/v1/":): \frac{0.0009}{d_{2}}\frac{0.003}{c}


Entonces:

Failed to parse (MathML with SVG or PNG fallback (recommended for modern browsers and accessibility tools): Invalid response ("Math extension cannot connect to Restbase.") from server "https://mathoid.scipedia.com/localhost/v1/":): c=\frac{30}{9}d_{2}


16 Anexo 2. Demostraciones del desarrollo del programa

16.1 Geometría analítica para el cálculo de eficiencias mecánicas

Ecuación de la recta A:

Failed to parse (MathML with SVG or PNG fallback (recommended for modern browsers and accessibility tools): Invalid response ("Math extension cannot connect to Restbase.") from server "https://mathoid.scipedia.com/localhost/v1/":): y=\frac{y_{u}}{x_{u}}x
(90)

Ecuación de la recta B:

Failed to parse (MathML with SVG or PNG fallback (recommended for modern browsers and accessibility tools): Invalid response ("Math extension cannot connect to Restbase.") from server "https://mathoid.scipedia.com/localhost/v1/":): y=\frac{y_{i+1}-y_{i}}{x_{i+1}-x_{i}}x+(y_{i+1}+(\frac{y_{i}-y_{i+1}}{x_{i+1}-x_{i}})x_{i+1})
(91)

Igualando las ecuaciones anteriores por compatibilidad:

Failed to parse (MathML with SVG or PNG fallback (recommended for modern browsers and accessibility tools): Invalid response ("Math extension cannot connect to Restbase.") from server "https://mathoid.scipedia.com/localhost/v1/":): \frac{y_{u}}{x_{u}}x=\frac{y_{i+1}-y_{i}}{x_{i+1}-x_{i}}x+(y_{i+1}+(\frac{y_{i}-y_{i+1}}{x_{i+1}-x_{i}})x_{i+1})
(92)

Despejando x de la ecuación anterior:

Failed to parse (MathML with SVG or PNG fallback (recommended for modern browsers and accessibility tools): Invalid response ("Math extension cannot connect to Restbase.") from server "https://mathoid.scipedia.com/localhost/v1/":): x=x_{r}=\frac{y_{i+1}+(\frac{y_{i}-y_{i+1}}{x_{i+1}-x_{i}})}{\frac{y_{u}}{x_{u}}-\frac{y_{i+1}-y_{i}}{x_{i+1}-x_{i}}}
(93)

Sustituyendo la Ecuación [ 88] en Ecuación [ 92].

Failed to parse (MathML with SVG or PNG fallback (recommended for modern browsers and accessibility tools): Invalid response ("Math extension cannot connect to Restbase.") from server "https://mathoid.scipedia.com/localhost/v1/":): y=y_{r}=\frac{y_{u}}{x_{u}}x_{r}
(94)

Donde: Failed to parse (MathML with SVG or PNG fallback (recommended for modern browsers and accessibility tools): Invalid response ("Math extension cannot connect to Restbase.") from server "https://mathoid.scipedia.com/localhost/v1/":): y_{u}=P_{u}


Failed to parse (MathML with SVG or PNG fallback (recommended for modern browsers and accessibility tools): Invalid response ("Math extension cannot connect to Restbase.") from server "https://mathoid.scipedia.com/localhost/v1/":): x_{u}=M_{u}


Failed to parse (MathML with SVG or PNG fallback (recommended for modern browsers and accessibility tools): Invalid response ("Math extension cannot connect to Restbase.") from server "https://mathoid.scipedia.com/localhost/v1/":): y_{r}=P_{r}


Failed to parse (MathML with SVG or PNG fallback (recommended for modern browsers and accessibility tools): Invalid response ("Math extension cannot connect to Restbase.") from server "https://mathoid.scipedia.com/localhost/v1/":): x_{r}=M_{r}


Failed to parse (MathML with SVG or PNG fallback (recommended for modern browsers and accessibility tools): Invalid response ("Math extension cannot connect to Restbase.") from server "https://mathoid.scipedia.com/localhost/v1/":): y_{i}=P_{i}


Failed to parse (MathML with SVG or PNG fallback (recommended for modern browsers and accessibility tools): Invalid response ("Math extension cannot connect to Restbase.") from server "https://mathoid.scipedia.com/localhost/v1/":): x_{i}=M_{i}


Failed to parse (MathML with SVG or PNG fallback (recommended for modern browsers and accessibility tools): Invalid response ("Math extension cannot connect to Restbase.") from server "https://mathoid.scipedia.com/localhost/v1/":): y_{i+1}=P_{i+1}


Failed to parse (MathML with SVG or PNG fallback (recommended for modern browsers and accessibility tools): Invalid response ("Math extension cannot connect to Restbase.") from server "https://mathoid.scipedia.com/localhost/v1/":): x_{i+1}=M_{i+1}


17 Referencias bibliográficas

BIBLIOGRAFÍA

[1] Adolfo Iván Jiménez P. y Dra. Sonia Elda Ruiz Gómez, Factores óptimos de cargas para el diseño de columnas esbeltas, Tesis de Licenciatura, UNAM, México, 2013
[2] Steven C. Chapra, Raymond P. Canale, Métodos numéricos para ingenieros, Quinta edición, McGraw Hill
[3] Gaceta Oficial de la Ciudad de México, Normas técnicas complementarias de la Ciudad de México, 2017, Normas Técnicas Complementarias para Diseño y Construcción de Estructuras de Concreto 2017
[4] González Cuevas, Fco. Robles Hernández, Aspectos básicos del concreto reforzado, 4ta edición, Limusa 2005
[5] Jack McCormac y Rusell H. Brows, Diseño de concreto reforzado, 14va edición, Alfaomega, 2015
[6] Turner, M. J., Clough, R. W., Martin H. C. and Topp, L. J. Stiffness and Deflection Analysis of Complex Structures . Journal of the Aeronautical Sciences, Vol. 23 No. 9, 1956 pp. 805-823.

[7] Yoeber Castro Atau, “Sistematización de detalles, habilitación y armado de acero ASTM A615 para construcciones de concreto armado: impacto técnico, económico y ambiental”, Universidad Nacional de San Cristobal de Huamanga, 2010

Back to Top

Document information

Published on 07/01/21
Submitted on 07/01/21

Volume 5, 2021
Licence: CC BY-NC-SA license

Document Score

0

Views 329
Recommendations 0

Share this document

claim authorship

Are you one of the authors of this document?